Частное лицо
Состояние: Б/у
OLX Доставка
Описание
Система працює добре, потребує лише чистки. Продаю т.я. в себе встановив потужнішу у звʼязку з розширенням торгівельної площі.
Система із пластичним рекуператором тепла призначена для налагодження природного процесу вентиляції, при подачі свіжих повітряних потоків та усунення відпрацьованого, спертого або забрудненого повітря з приміщень. Відмінно підійде для приміщень як побутової, так і суспільної спрямованості.
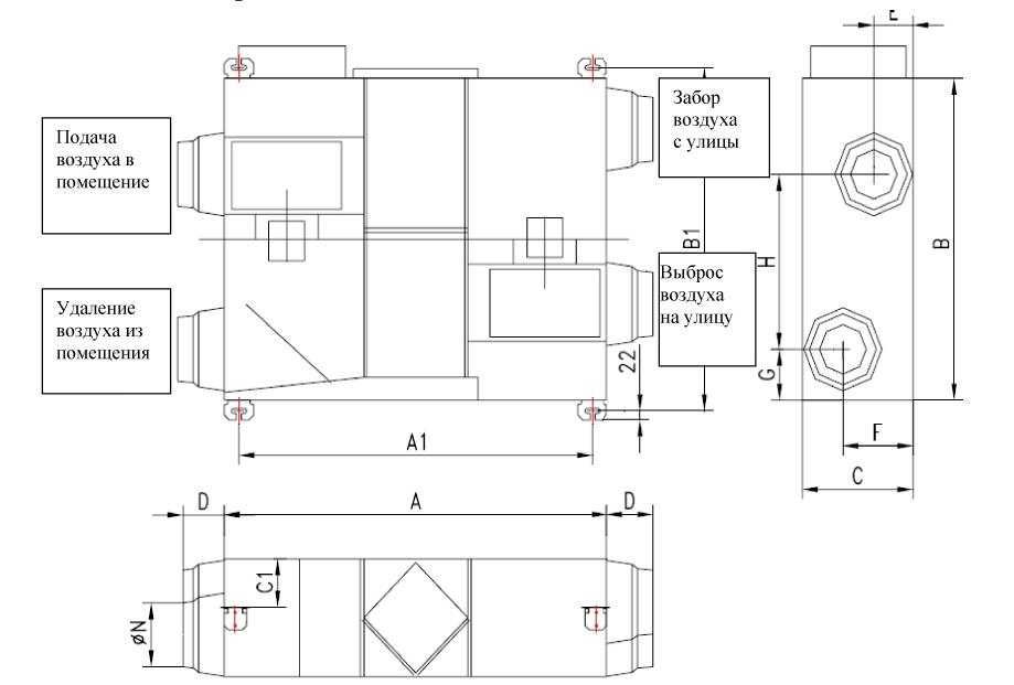
Щоб детальніше ознайомитися з конструкцією та налаштуванням цієї моделі, всю потрібну інформацію дивіться в інструкції, яка прикріплена вище.
Модель виготовлена виключно із міцних та надійних матеріалів, маючи при цьому тонкі перехресні канали. У них повітряні потоки припливного та витяжного повітря обмінюються тепловою енергією, що сприяє збереженню енергії, що виробляється охолоджувачами (кондиціонерами) або будь-яким іншим тепловим обладнанням, для підтримки всередині приміщення найбільш сприятливих температурних показників.
Такі агрегати значною мірою дозволять економити електроенергію, забезпечуючи при цьому досить низький рівень шуму, що стало можливим завдяки корпусу, виготовленому з матеріалу, що шумоізолює. Водночас, рекуператор має низький рівень повітряного опору.
Управління агрегатом здійснюється за рахунок провідного пульта управління, де ви можете змінювати режим роботи, збільшувати/зменшувати температурні показники, знижувати вологість приміщення (за умови підключення віддаленого гідростату), або ж налаштувати таймер на автоматичне включення/вимкнення.
Характеристики Gree FHBQ-D10-K
Функції роботи
регулювання подачі свіжого повітря;
обігрів чи охолодження, залежно від кліматичних потреб;
багаторівнева фільтрація;
витяжка відпрацьованого чи спертого повітря.
Також є додаткова функція осушення, що дуже корисно у приміщеннях із підвищеним рівнем вологості.
Робота у чотирьох режимах
переважання припливу над витяжкою;
переважання витяжки над припливом;
байпас (пряме подання свіжого повітря без використання рекуператора);
теплообмін – дотримується повітряний баланс припливу та витяжки, використовується рекуператор.
Переваги моделі
компактна форма, що спрощує процес монтажу та введення в експлуатацію;
наявність відцентрового вентилятора, що забезпечує великий статистичний тиск та мала витрата енергоспоживання;
висота профілю оптимізована, що значною мірою заощаджує вільний простір.
Система із пластичним рекуператором тепла призначена для налагодження природного процесу вентиляції, при подачі свіжих повітряних потоків та усунення відпрацьованого, спертого або забрудненого повітря з приміщень. Відмінно підійде для приміщень як побутової, так і суспільної спрямованості.
Щоб детальніше ознайомитися з конструкцією та налаштуванням цієї моделі, всю потрібну інформацію дивіться в інструкції, яка прикріплена вище.
Модель виготовлена виключно із міцних та надійних матеріалів, маючи при цьому тонкі перехресні канали. У них повітряні потоки припливного та витяжного повітря обмінюються тепловою енергією, що сприяє збереженню енергії, що виробляється охолоджувачами (кондиціонерами) або будь-яким іншим тепловим обладнанням, для підтримки всередині приміщення найбільш сприятливих температурних показників.
Такі агрегати значною мірою дозволять економити електроенергію, забезпечуючи при цьому досить низький рівень шуму, що стало можливим завдяки корпусу, виготовленому з матеріалу, що шумоізолює. Водночас, рекуператор має низький рівень повітряного опору.
Управління агрегатом здійснюється за рахунок провідного пульта управління, де ви можете змінювати режим роботи, збільшувати/зменшувати температурні показники, знижувати вологість приміщення (за умови підключення віддаленого гідростату), або ж налаштувати таймер на автоматичне включення/вимкнення.
Характеристики Gree FHBQ-D10-K
Функції роботи
регулювання подачі свіжого повітря;
обігрів чи охолодження, залежно від кліматичних потреб;
багаторівнева фільтрація;
витяжка відпрацьованого чи спертого повітря.
Також є додаткова функція осушення, що дуже корисно у приміщеннях із підвищеним рівнем вологості.
Робота у чотирьох режимах
переважання припливу над витяжкою;
переважання витяжки над припливом;
байпас (пряме подання свіжого повітря без використання рекуператора);
теплообмін – дотримується повітряний баланс припливу та витяжки, використовується рекуператор.
Переваги моделі
компактна форма, що спрощує процес монтажу та введення в експлуатацію;
наявність відцентрового вентилятора, що забезпечує великий статистичний тиск та мала витрата енергоспоживання;
висота профілю оптимізована, що значною мірою заощаджує вільний простір.
ID: 880281947
Связаться с продавцом
xxx xxx xxx
Опубликовано 04 января 2026 г.
Припливно-витяжна установка Gree FHBQ-D10-K з рекуперацією тепла
27 000 грн.
Договорная
Местоположение
Возвраты
Уверенность в каждой покупке
Вы можете бесплатно вернуть товар при получении, если он не соответствует вашим ожиданиям. Подробнее
