Бизнес
Вид объекта: Новостройка
Название ЖК: ЖК Петровский городок
Этаж: 1
Этажность: 5
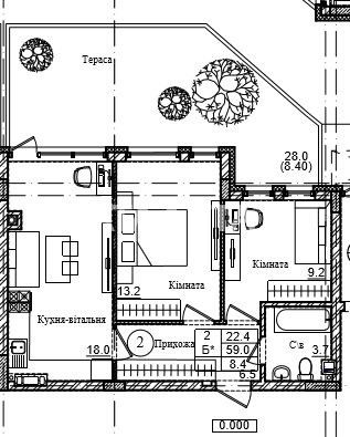
Общая площадь: 59 м²
Площадь кухни: 18 м²
Тип стен: Монолитный
Количество комнат: 2 комнаты
Планировка: Раздельная
Санузел: Смежный
Отопление: Индивидуальное газовое
Ремонт: После строителей
Комфорт: Терраса
Описание
Підходить під єОселю Держпрограми та єВідновлення
Пропонуємо до продажу двокімнатну квартиру з власним двориком в ЖК Петрівське містечко, квартира знаходиться на першому поверсі 5 поверхового будинку. В будинку є ліфт . Висота стелі 3,2м.Квартира здається з високим ступенем завершеності, броньовані двері, чорнова штукатурка , тепла підлога, лазерна стяжка, заведена електрика, газовий котел, зроблені розведення під кондиціонери та радіатори все це входить в вартість. В будинку є комірки, які ще є в наявності. Парко місця, які розташовані коло комплексу, в обмеженій кількості та пропонуються до продажу.Житло з індивідуальним опаленням, в затишному безпечному місці.
Площа квартири 59м2 кухня студія 18м.кв . Також можна придбати квартири від забудовника за більш лояльною вартістю, в будинку який буде здаватися з 1.10.2025р.
Поряд з жк Петрівське містечко забудувалися та заселені
-жк Петрівські Липки
жк Комфортне містечко
жк Свято Петрівське
та інші
Поряд школа та садочок, магазини та кафе.
Неподалеку в пішій доступності , зупинка маршрутки , яка іде до метро Академмістечко. До Окружної дороги 7 км., доїхати зручно та швидко . Власник пропонує варіант квартири з ремонтом, яка буде коштувати на 300 у.е. за м.кв дорожче.
Всі питання за телефоном
код обєкту 378939
Чекаємо на перегляді!
Можливе придбання в кредит за програмою ДМЖ, єОселя 3%, 7%, єОселя 7% (ВПО)
Код об'єкта: k56`378939`29. АН "Атланта".
Більше інформації та світлин за посиланням: https://www.atlanta.ua/kiev/object/2komnatnye/378939
Пропонуємо до продажу двокімнатну квартиру з власним двориком в ЖК Петрівське містечко, квартира знаходиться на першому поверсі 5 поверхового будинку. В будинку є ліфт . Висота стелі 3,2м.Квартира здається з високим ступенем завершеності, броньовані двері, чорнова штукатурка , тепла підлога, лазерна стяжка, заведена електрика, газовий котел, зроблені розведення під кондиціонери та радіатори все це входить в вартість. В будинку є комірки, які ще є в наявності. Парко місця, які розташовані коло комплексу, в обмеженій кількості та пропонуються до продажу.Житло з індивідуальним опаленням, в затишному безпечному місці.
Площа квартири 59м2 кухня студія 18м.кв . Також можна придбати квартири від забудовника за більш лояльною вартістю, в будинку який буде здаватися з 1.10.2025р.
Поряд з жк Петрівське містечко забудувалися та заселені
-жк Петрівські Липки
жк Комфортне містечко
жк Свято Петрівське
та інші
Поряд школа та садочок, магазини та кафе.
Неподалеку в пішій доступності , зупинка маршрутки , яка іде до метро Академмістечко. До Окружної дороги 7 км., доїхати зручно та швидко . Власник пропонує варіант квартири з ремонтом, яка буде коштувати на 300 у.е. за м.кв дорожче.
Всі питання за телефоном
код обєкту 378939
Чекаємо на перегляді!
Можливе придбання в кредит за програмою ДМЖ, єОселя 3%, 7%, єОселя 7% (ВПО)
Код об'єкта: k56`378939`29. АН "Атланта".
Більше інформації та світлин за посиланням: https://www.atlanta.ua/kiev/object/2komnatnye/378939
ID: 902418082
Связаться с продавцом
xxx xxx xxx

