Бизнес
Вид объекта: Новостройка
Подходит под требования єОселя
Тип дома: Жилой фонд от 2021 р.
Название ЖК: Navigator 2
Этаж: 19
Этажность: 25
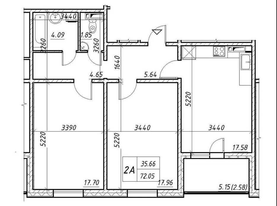
Общая площадь: 72.05 м²
Площадь кухни: 17.58 м²
Тип стен: Панельный
Класс жилья: Эконом
Количество комнат: 2 комнаты
Планировка: Раздельная
Санузел: Раздельный
Отопление: Централизованное
Ремонт: После строителей
Меблирование: Нет
Комфорт: Видеонаблюдение, Балкон, лоджия, Консъерж, Лифт, Гостевой паркинг, Грузовой лифт
Коммуникации: Асфальтированная дорога, Центральная канализация, Электричество, Вывоз отходов, Центральный водопровод
Инфраструктура (до 500 метров): Отделение банка, банкомат, Кинотеатр, театр, Аптека, Больница, поликлиника, Детский сад, Рынок, Парк, зелёная зона, Детская площадка, Отделение почты, Ресторан, кафе, Школа, Магазин, киоск, Супермаркет, ТРЦ, Остановка транспорта
Ландшафт (до 1 км.): Лес, Озеро, Парк
Описание
- Загальна площа квартири 72.05 м2.
- Житлова площа - 35.66 м2.
- Вид з вікон в двір Будинку 3 (схід)
- Проект від надійного забудовника: ДБК Житлобуд
Будинок побудовано в 2023 році, панельна технологія будівництва з вентильованим фасадом HOSTROCK і енергозберігаючими вікнами REHAU, що гарантують в квартирах збереження тепла взимку та прохолоди влітку. Квартира з ремонтом від забудовника.
Будинок введено в експлуатацію та активно заселяється новими мешканцями
Связаться с продавцом
xxx xxx xxx

