Бизнес
Вид объекта: Новостройка
Без комиссии
Подходит под требования єОселя
Название ЖК: Деснянський
Этаж: 24
Этажность: 25
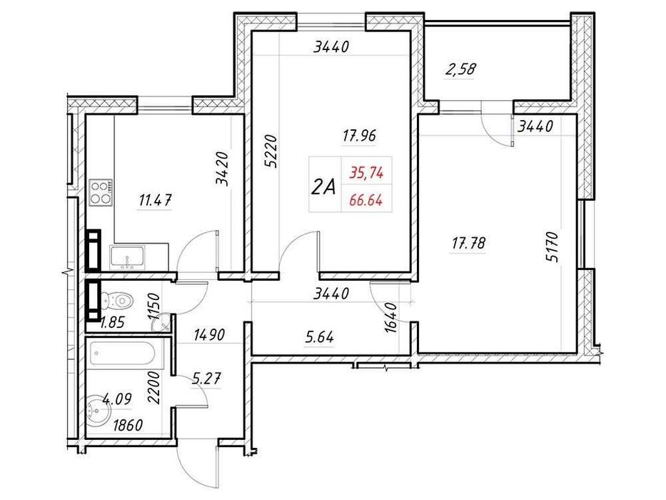
Общая площадь: 66.64 м²
Площадь кухни: 11.47 м²
Количество комнат: 2 комнаты
Планировка: Раздельная
Санузел: Раздельный
Отопление: Индивидуальное газовое
Ремонт: Евроремонт
Описание
Остання квартира подібного планування під єОселю 3% та 7% в цьому Житловому комплексі!
Квартира з якісним РЕМОНТОМ під ключ! ЖК Деснянський, Закревського, 43 (Електротехнічна, 43)
ЄОСЕЛЯ! Допомога у швидкому оформленні!
В продажі 2к квартира з РЕМОНТОМ! в ЖК Деснянський, вул. Електротехнічна, 43 Деснянський район!
Раціональне планування 2к квартира 66,64 м2 з двома просторими спальнями та просторою кухнею
Житлова 36
Кухня 12
Житловий комплекс «Деснянський» складається з 3-х багатоповерхових будинків (25 поверхів), об'єднаних спільною прибудинковою територією та належне облаштування: квіткові клумби, зелені газони, зони відпочинку для дорослих, дитячі та спортивні майданчики.
Будівництво виконується за вдосконаленими технологіями панельного будівництва, які передбачають сучасне фасадне утеплення будинків та поліпшене планування квартир.
Територіально, це східна межа житлового масиву Троєщина – цікава й перспективна локація неподалік від найбільшого у Києві озера Алмазне, улюбленого місця відпочинку на природі жителів навколишніх кварталів. Тобто, з одного боку ЖК розташований житловий масив з розвинутою інфраструктурою, а з іншого – фактично рекреаційна зона з місцями для відпочинку на природі.
Квартира з якісним РЕМОНТОМ під ключ! ЖК Деснянський, Закревського, 43 (Електротехнічна, 43)
ЄОСЕЛЯ! Допомога у швидкому оформленні!
В продажі 2к квартира з РЕМОНТОМ! в ЖК Деснянський, вул. Електротехнічна, 43 Деснянський район!
Раціональне планування 2к квартира 66,64 м2 з двома просторими спальнями та просторою кухнею
Житлова 36
Кухня 12
Житловий комплекс «Деснянський» складається з 3-х багатоповерхових будинків (25 поверхів), об'єднаних спільною прибудинковою територією та належне облаштування: квіткові клумби, зелені газони, зони відпочинку для дорослих, дитячі та спортивні майданчики.
Будівництво виконується за вдосконаленими технологіями панельного будівництва, які передбачають сучасне фасадне утеплення будинків та поліпшене планування квартир.
Територіально, це східна межа житлового масиву Троєщина – цікава й перспективна локація неподалік від найбільшого у Києві озера Алмазне, улюбленого місця відпочинку на природі жителів навколишніх кварталів. Тобто, з одного боку ЖК розташований житловий масив з розвинутою інфраструктурою, а з іншого – фактично рекреаційна зона з місцями для відпочинку на природі.
ID: 900100924
Связаться с продавцом
xxx xxx xxx
Опубликовано 23 ноября 2025 г.
єОселя 3% та 7%! РЕМОНТ!2к-67м2 ЖК Деснянський вул. Закревського БЕЗ%
58 900 $
Местоположение
Киев, Деснянский
Киевская область