Бизнес
Вид объекта: Новостройка
Подходит под требования єОселя
Тип дома: Жилой фонд от 2021 р.
Название ЖК: Атлант
Этаж: 20
Этажность: 20
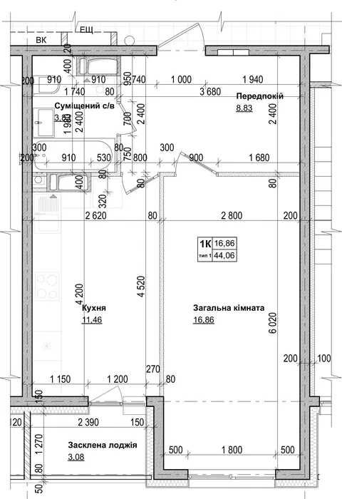
Общая площадь: 44 м²
Площадь кухни: 12 м²
Тип стен: Газоблок
Класс жилья: Эконом
Количество комнат: 1 комната
Планировка: Раздельная
Санузел: Смежный
Отопление: Централизованное
Ремонт: После строителей
Меблирование: Нет
Комфорт: Видеонаблюдение, Балкон, лоджия, Консъерж, Лифт, Пожарная сигнализация, Гостевой паркинг, Панорамные окна, Охраняемая территория, Грузовой лифт, Хоз. помещение, кладовка
Коммуникации: Асфальтированная дорога, Центральная канализация, Электричество, Вывоз отходов, Центральный водопровод
Инфраструктура (до 500 метров): Отделение банка, банкомат, Аптека, Больница, поликлиника, Детский сад, Парк, зелёная зона, Детская площадка, Отделение почты, Ресторан, кафе, Магазин, киоск, Остановка транспорта
Ландшафт (до 1 км.): Парк
Описание
Світла та затишна квартира зі зручним плануванням. З вікон квартири відкривається вражаючий краєвид на Київ. Планування включає простору кухню-вітальню, окрему спальню, санвузол та засклений балкон. В квартирі зроблено чорнова штукатурка стін, цементне стягування підлоги, встановлені сучасні віконні системи з енергозберігаючим склопакетом, мідне електричне розведення по квартирі, встановлені лічильники на воду, тепло, електрику. Є окрема комірка 3м2 на цьому поверсі. Це ідеальний варіант для сім'ї або під інвестицію.
Будинок побудований по монолітно-каркасній технології економ класу з повністю підготовленим укриттям.
Новобудова розташована в оточенні кількох нових комплексів з власною інфраструктурою, що дозволить отримувати всі необхідні послуги недалеко від будинку. За продуктами 5 хвилин пішки до супермаркету Novus та 8 хвилин пішки до «Фори». До ще одного супермаркету «Фора» — 4 хвилини на авто. В пішій доступності школа, сад, аптеки, магазини, супермаркети, кафе, пошта, банк, Ліс, сади, озеро, дитячі та спортивні майданчики, ЖК Софія Нова, ЖК Одеський бульвар, ВДНГ. Зручна локація - на авто до Метро Теремки, Іподром 9хв, пішки 20хв.
Будинок введений в експлуатацію та заселений у Січні 2025 року. Квартира з правом власності менше 3 років.
Купувати квартиру з нами вигідно та комфортно! Телефонуйте!
Связаться с продавцом
xxx xxx xxx

