Перейти к основному разделу
Чат
  • Укр
  • Рус

Уведомления

Ваш профиль

Подать объявление
ОРЕНДА виробничого цеху
ОРЕНДА виробничого цеху
ОРЕНДА виробничого цеху
ОРЕНДА виробничого цеху
ОРЕНДА виробничого цеху
РекламироватьПоднять

Бизнес

Расстояние до ближайшего города: В городе

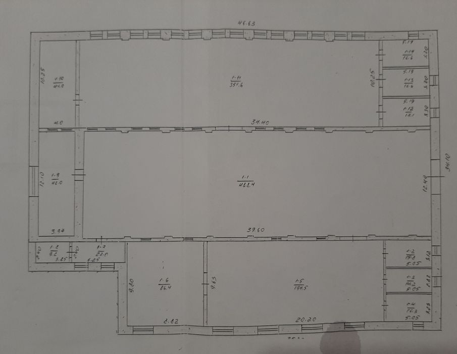
Общая площадь: 1 500 м²

Описание

Виробниче приміщення з великою територією розташоване у промзоні ДМК, в районі прохідної ДКХЗ, на вул. Колеусівській. Добре підійде для розміщення шкідливих виробництв, також можна використовувати як складські приміщення. Загальна площа – 1 500 кв. м. Введення електрики 380В/100кВт, з можливістю збільшення потужності. Вартість оренди – 20 грн за кв. м, можливий варіант оренди частинами як приміщення, так і території. Телефонуйте! Приїжджайте дивіться, пропонуйте свій варіант ціни.
Якщо у Вас є нерухомість, яку Ви хочете продати чи здати в оренду – телефонуйте! Ми працюємо на Ваших умовах, надаємо безкоштовні юридичні консультації, оформлюємо всю документацію та шукаємо потенційних покупців.
ID: 715334715

Связаться с продавцом

Facebook connected icon

Каменское АН

на OLX с октябрь 2020 г.

Онлайн 20 марта 2026 г.

xxx xxx xxx

Опубликовано 20 марта 2026 г.

ОРЕНДА виробничого цеху

20 грн.

Местоположение

Location

Каменское

Днепропетровская область

Бесплатное приложение для твоего телефона