Перейти к основному разделу
Чат
  • Укр
  • Рус

Уведомления

Подать объявление
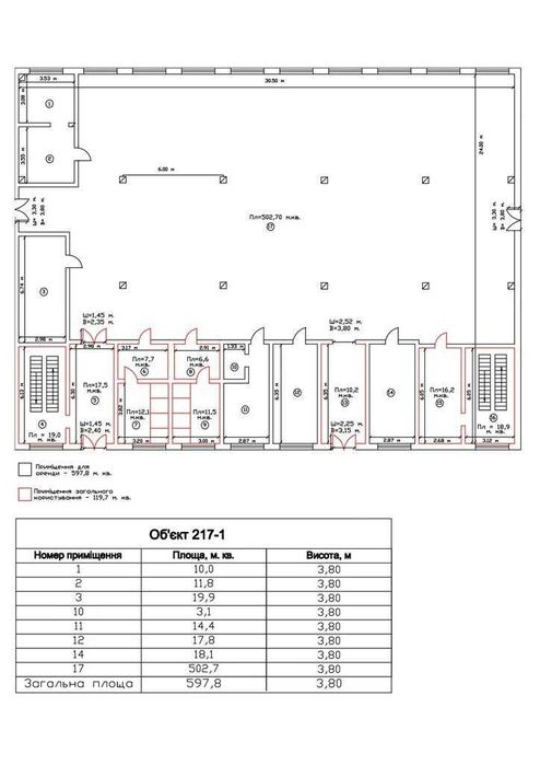
Оренда виробничого/складського приміщення в Мукачеві 630 м2
Оренда виробничого/складського приміщення в Мукачеві 630 м2
Оренда виробничого/складського приміщення в Мукачеві 630 м2
РекламироватьПоднять

Бизнес

Без комиссии

Расстояние до ближайшего города: В городе

Расположение: Отдельное помещение

Этаж: 1

Этажность: 2

Общая площадь: 626 м²

Описание

Пропонуємо під оренду приміщення, площею 630 м2 в Мукачеві по вул. Свалявська.
В придатному стані на першому поверсі.
Є широкі ворота, прямий підїзд до приміщення.
В приміщені є підсобні приміщення та санвузли.
Підійде як під склад так і під виробництво.
Огороджена територія під охороною
Додатково в наявності є офісні, складські приміщення від 50-1000 м2.
Оренда напряму від власника. Без комісії.
За детальною інформацією, телефонуйте
ID: 881447040

Связаться с продавцом

Тетяна

на OLX с октябрь 2018 г.

Онлайн 26 сентября 2025 г.

xxx xxx xxx

Опубликовано 08 октября 2025 г.

Оренда виробничого/складського приміщення в Мукачеві 630 м2

2.50 €

Местоположение

Location

Мукачево

Закарпатская область

Бесплатное приложение для твоего телефона