Бизнес
Расстояние до ближайшего города: до 5 км.
Расположение: Другое
Тип объекта: Другое
Этаж: 1
Этажность: 1
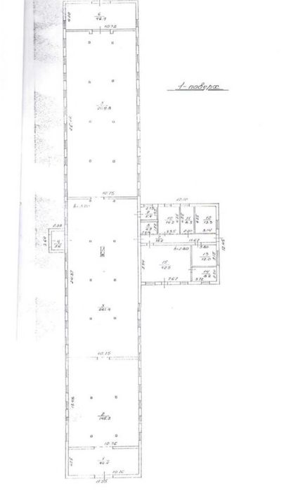
Общая площадь: 900 м²
Описание
Оренда виробничо-складський комплекс
Колоденка
Приміщення площею 900м.кв. може підійти під склад, виробництво або іншу діяльність.
Земельна ділянка у приватній власності площею - 54 сотки.
Територія повністю огорджена
Хороший асфальтований доїзд габаритного транспорту.
Широкі ворота.
Вода - власна скважина
Каналізація (септик - 2шт.)
Потужність е/е - 75 кВт (при потребі можна збільшити)
гарна логістика, об'їзна Київ - Чоп.
пропозиція від агентства, послуги платні, є одноразова комісія 50% від місячної вартості об'єкта нерухомості
Колоденка
Приміщення площею 900м.кв. може підійти під склад, виробництво або іншу діяльність.
Земельна ділянка у приватній власності площею - 54 сотки.
Територія повністю огорджена
Хороший асфальтований доїзд габаритного транспорту.
Широкі ворота.
Вода - власна скважина
Каналізація (септик - 2шт.)
Потужність е/е - 75 кВт (при потребі можна збільшити)
гарна логістика, об'їзна Київ - Чоп.
пропозиція від агентства, послуги платні, є одноразова комісія 50% від місячної вартості об'єкта нерухомості
ID: 904825369
Связаться с продавцом
xxx xxx xxx

