Бизнес
Расстояние до ближайшего города: В городе
Расположение: Отдельное помещение
Этаж: 1
Этажность: 9
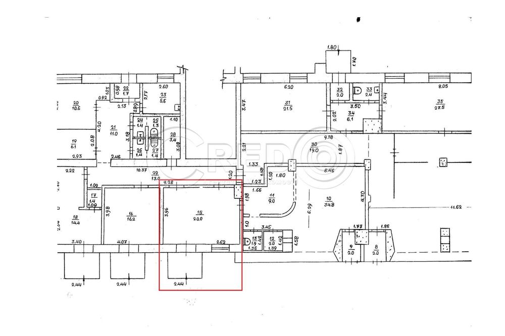
Общая площадь: 20 м²
Отопление: Индивидуальное электро
Комфорт: Пожарная сигнализация, Сигнализация
Тип: Другой
Коммуникации: Центральный водопровод, Асфальтированная дорога, Центральная канализация
Описание
Оренда магазину по пр. Університетський, 69
Довгинцівсикий район
Технічні характеристики:
- перший поверх 9-ти поверхового житлового будинку
- "червона лінія"
Планування об’єкту:
- загальна площа -20 кв.м
- окремий центральний вхід
Комунікації:
- опалення центральне відрізане, сплачується транзит
- центральне електропостачання 10кВт; 380V
- центральне водопостачання, каналізація
- пожежна, охоронyа сигналізації
Логістична розв’язка:
- приміщення розташоване в густонаселеному районі
- поруч зупинки громадського транспорту
- кільце автовокзалу
- супермаркет "АТБ", магазини "Єва", "Файна", аптеки "Подорожник", "АНЦ", та безліч інших магазинів
- великий автомобільний та пішохідний трафік
Додаткові платежі:
- світло, водопасточання
- пожежна, охороyна сигналізації
-50% - послуга агенції.
Оренда 10 000грн.
За будь-якими питаннями за цією або схожими пропозиціями звертайтесь за номером телефону.
З повагою, команда Credo!
Номер оголошення на сайті компанії: RC-218-823-LX.
Довгинцівсикий район
Технічні характеристики:
- перший поверх 9-ти поверхового житлового будинку
- "червона лінія"
Планування об’єкту:
- загальна площа -20 кв.м
- окремий центральний вхід
Комунікації:
- опалення центральне відрізане, сплачується транзит
- центральне електропостачання 10кВт; 380V
- центральне водопостачання, каналізація
- пожежна, охоронyа сигналізації
Логістична розв’язка:
- приміщення розташоване в густонаселеному районі
- поруч зупинки громадського транспорту
- кільце автовокзалу
- супермаркет "АТБ", магазини "Єва", "Файна", аптеки "Подорожник", "АНЦ", та безліч інших магазинів
- великий автомобільний та пішохідний трафік
Додаткові платежі:
- світло, водопасточання
- пожежна, охороyна сигналізації
-50% - послуга агенції.
Оренда 10 000грн.
За будь-якими питаннями за цією або схожими пропозиціями звертайтесь за номером телефону.
З повагою, команда Credo!
Номер оголошення на сайті компанії: RC-218-823-LX.
ID: 908498554
Связаться с продавцом
xxx xxx xxx
Опубликовано 05 декабря 2025 г.
Оренда торгового приміщеня пр. Університетський, 69
10 000 грн.
Местоположение
Кривой Рог, Центрально-Городской
Днепропетровская область