Бизнес
Для совместной аренды
Расстояние до ближайшего города: В городе
Расположение: Отдельное помещение
Тип объекта: Бизнес-центр
Общая площадь: 700 м²
Санузел: Да
Ремонт: Да
Описание
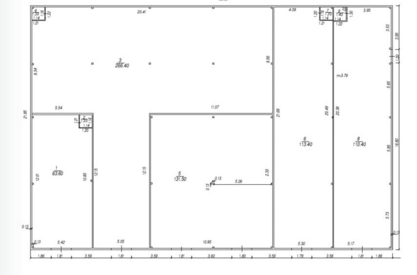
ОРЕНДА район Балашовки: 230, 120, 60 м.кв в новому ТЦ «Шоколад» м.Кропивницький вул.Р.Слободянюка 126
- Локація: у центрі великого спального району, червона лінія, через це місце проходить основна дорога ще в один великий спальний район, щільний автомобільний трафік.
- Основі якорі, які заходять: Аврора, Анді(речі), Аптека
- Навколо комплексу багато торгівельної комерції: «Файно маркет», «Копійочка», «Мясомаркет», «Подорожник» та інші
- Навпроти комплексу зупинка
- Площа комплексу 700 м.кв
- Водопостачання, каналізація у кожному лоті
- Світло кожному: 3 фази по 15 квт
- Паркування
-
- Локація: у центрі великого спального району, червона лінія, через це місце проходить основна дорога ще в один великий спальний район, щільний автомобільний трафік.
- Основі якорі, які заходять: Аврора, Анді(речі), Аптека
- Навколо комплексу багато торгівельної комерції: «Файно маркет», «Копійочка», «Мясомаркет», «Подорожник» та інші
- Навпроти комплексу зупинка
- Площа комплексу 700 м.кв
- Водопостачання, каналізація у кожному лоті
- Світло кожному: 3 фази по 15 квт
- Паркування
-
ID: 879960785
Связаться с продавцом
xxx xxx xxx
Опубликовано 11 ноября 2025 г.
Оренда рн Балашовки, червона лінія
500 грн.
Договорная
Местоположение
Кропивницкий, Фортечный
Кировоградская область
