Бизнес
Этаж: 1
Этажность: 4
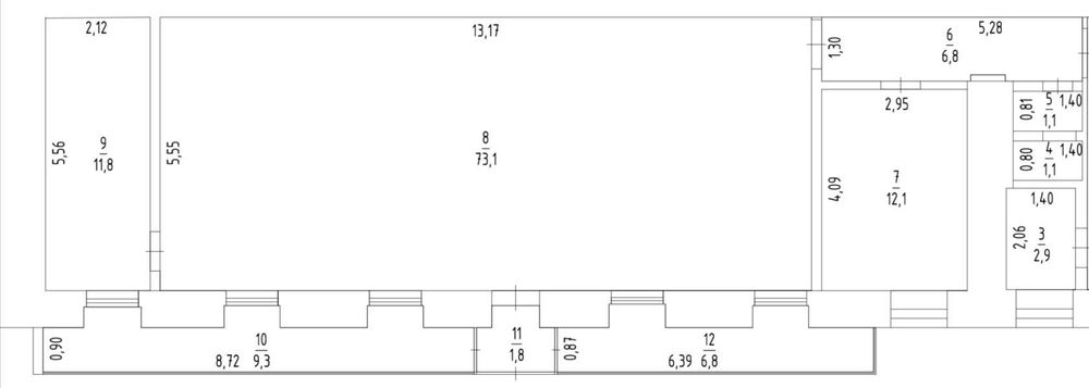
Общая площадь: 120 м²
Описание
До вашої уваги оренда приміщення вільного призначення загальною площею 120 м2 ! Приміщення знаходиться на фасаді вулиці Коріатовичів, має великі вітрині вікна , велику торгову залу , кабінет і складське приміщення.
Величезний авто трафік, багато місця для вашої реклами, парковка, гнучкі умови оренди, на даний момент в приміщенні ведуть ремонтні роботи, можливий варіант ремонту під вас! Заведено 20 кіловат електроенергії, можливість збільшення, доступ до приміщення 24/7. Запрошуємо вас на перегляд, усі уточнення по телефону!)
Величезний авто трафік, багато місця для вашої реклами, парковка, гнучкі умови оренди, на даний момент в приміщенні ведуть ремонтні роботи, можливий варіант ремонту під вас! Заведено 20 кіловат електроенергії, можливість збільшення, доступ до приміщення 24/7. Запрошуємо вас на перегляд, усі уточнення по телефону!)
ID: 896448312
Связаться с продавцом
xxx xxx xxx

