Бизнес
Расстояние до ближайшего города: В городе
Этаж: 1
Этажность: 4
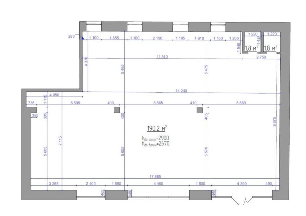
Общая площадь: 190 м²
Отопление: Централизованное
Коммуникации: Асфальтированная дорога, Электричество, Центральный водопровод
Инфраструктура (до 500 метров): Отделение банка, банкомат, Центр города, Аптека, Жилой массив, Офисы, бизнес центр, Стоянка, парковка, гараж, Отделение почты, Ресторан, кафе, бар
Описание
Оренда приміщення у м. Рівне
Адреса: м. Рівне, вул. Кавказька, 9, Рівненська область
Локація: центр міста;
Площа: 190,2 м.кв.
Електрична потужність: 40 кВт;
Водопостачання та водовідведення - під'єднано;
Опалення: централізоване;
Опис локації: приміщення розташоване у самому центрі міста, у сформованому житловому районі з багатоквартирною забудовою. Уздовж вулиці проходить проїжджа міська дорога з стабільним автомобільним рухом, що забезпечує зручний під’їзд до об’єкта.
Навпроти Центр зайнятості, KredoBank, банк Львів, ресторан.
Поруч перукукарня, кав'ярня, танцювальний клуб, магазин електроніки KORPUS, Віконд, кондитерська, продуктовий магазин, поштомат НП, ветклініка, стадіон, Ева, аптеки та точки повсякденного сервісу.
Комісія агенції: 50% разово.
Адреса: м. Рівне, вул. Кавказька, 9, Рівненська область
Локація: центр міста;
Площа: 190,2 м.кв.
Електрична потужність: 40 кВт;
Водопостачання та водовідведення - під'єднано;
Опалення: централізоване;
Опис локації: приміщення розташоване у самому центрі міста, у сформованому житловому районі з багатоквартирною забудовою. Уздовж вулиці проходить проїжджа міська дорога з стабільним автомобільним рухом, що забезпечує зручний під’їзд до об’єкта.
Навпроти Центр зайнятості, KredoBank, банк Львів, ресторан.
Поруч перукукарня, кав'ярня, танцювальний клуб, магазин електроніки KORPUS, Віконд, кондитерська, продуктовий магазин, поштомат НП, ветклініка, стадіон, Ева, аптеки та точки повсякденного сервісу.
Комісія агенції: 50% разово.
ID: 911018991
Связаться с продавцом
xxx xxx xxx

