Бизнес
Расположение: Отдельное помещение
Общая площадь: 165 м²
Санузел: Да
Комфорт: Сигнализация, Парковочное место, Охраняемая территория, Видеонаблюдение
Коммуникации: Электричество
Описание
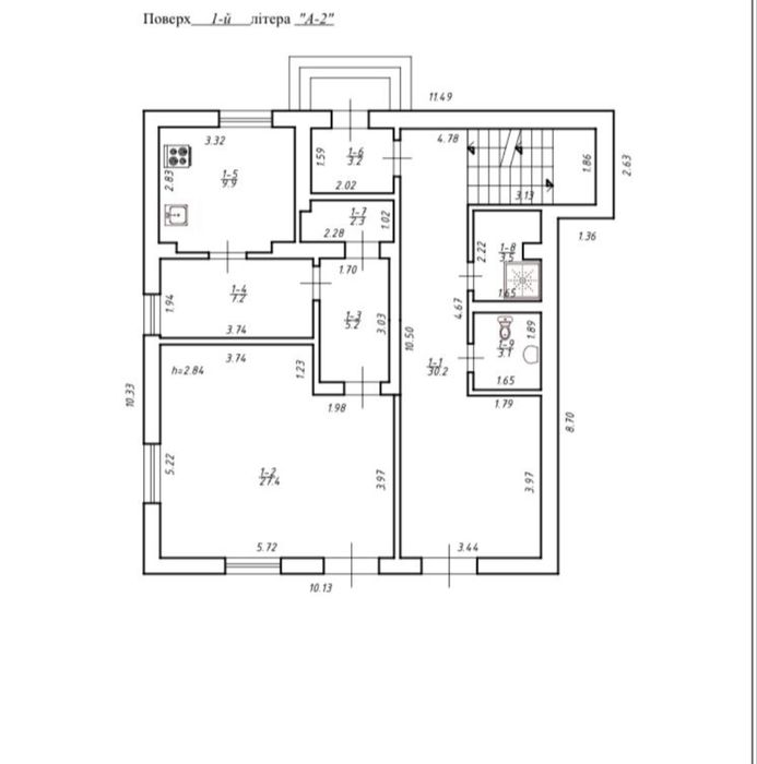
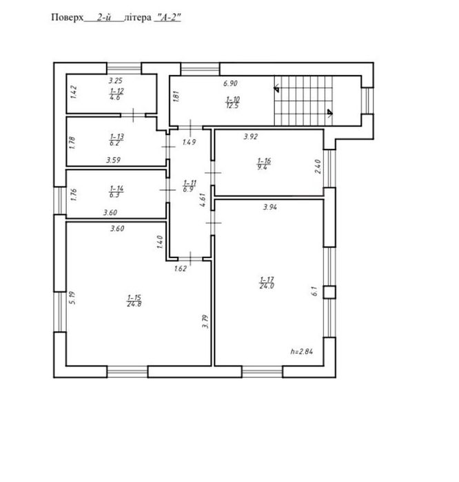
Здаємо в оренду приміщення:
- 165 м2- м.Миколаїв вул. Львівська Львівська обл.
Ідеально підійде під стоматологію, зроблені всі комунікації: до крісел підведено вода холодна, гаряча, повітря, кисень, індивідуальне опалення, сигналізація хорони, сигналізація протипожежна, відео спостереження, інтернет, паркомісця, світло три фази потужністю 45 кВт
Приміщення стоматології складається: рецепції, два санвузла для персоналу та відвідувачів, котельня, ренген кабінет, кімната керування, стерилізаційна, два кабінети стоматолога на чотири крісла компресорна, кімната персоналу
- 165 м2- м.Миколаїв вул. Львівська Львівська обл.
Ідеально підійде під стоматологію, зроблені всі комунікації: до крісел підведено вода холодна, гаряча, повітря, кисень, індивідуальне опалення, сигналізація хорони, сигналізація протипожежна, відео спостереження, інтернет, паркомісця, світло три фази потужністю 45 кВт
Приміщення стоматології складається: рецепції, два санвузла для персоналу та відвідувачів, котельня, ренген кабінет, кімната керування, стерилізаційна, два кабінети стоматолога на чотири крісла компресорна, кімната персоналу
ID: 850677106
Связаться с продавцом
xxx xxx xxx
Опубликовано 16 февраля 2026 г.
Оренда приміщення під стоматологію Миколаїв
1 000 $
Местоположение
Николаев
Львовская область