Бизнес
Без комиссии
Расстояние до ближайшего города: В городе
Расположение: Фасадное помещение
Тип объекта: Нежилое помещение в жилом фонде
Этаж: 1
Этажность: 27
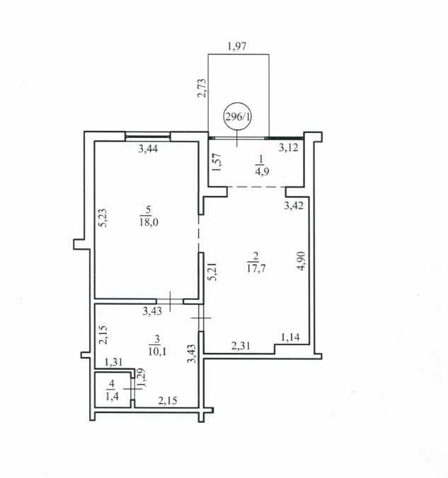
Общая площадь: 53 м²
Год постройки / сдачи: 2011 - 2015
Санузел: Да
Отопление: Индивидуальное электро
Ремонт: Да
Комфорт: Гостевой паркинг, Панорамные окна
Меблирование: Нет
Тип: Магазин
Коммуникации: Асфальтированная дорога, Центральная канализация, Электричество, Центральный водопровод
Инфраструктура (до 500 метров): Отделение банка, банкомат, Жилой массив, Ресторан, кафе, бар, Транспортная развязка
Описание
Оренда приміщень в ЖК Навігатор, Н/Фонд 52, 5 кв.м. пров. Балтійський, 3 (Оболонський район), 1 поверх, фасадний окремий вхід, гарне розміщення реклами, всі будинки заселені, час на облаштування. Електрика 12кВт. Найближчі станції метро Почайна, Оболонь 3км, ст.м. Дорогожичі 3, 5 км. Зараз Кав'ярня. Розглянемо усі види діяльності.
Ціна оренди 29.000 грн + комунальні. Без комісії для Орендаря
Листування на сайті не ведемо, на всі запитання відповідаємо по телефону.
Про перегляди домовляємось ЛИШЕ по телефону.
Ціна оренди 29.000 грн + комунальні. Без комісії для Орендаря
Листування на сайті не ведемо, на всі запитання відповідаємо по телефону.
Про перегляди домовляємось ЛИШЕ по телефону.
ID: 902385478
Связаться с продавцом
xxx xxx xxx

