Перейти к основному разделу
Чат
  • Укр
  • Рус

Уведомления

Подать объявление
ОРЕНДА – приміщення 1-го поверху площею 98,8 кв.м. м. Сторожинець
ОРЕНДА – приміщення 1-го поверху площею 98,8 кв.м. м. Сторожинець
ОРЕНДА – приміщення 1-го поверху площею 98,8 кв.м. м. Сторожинець
ОРЕНДА – приміщення 1-го поверху площею 98,8 кв.м. м. Сторожинець
ОРЕНДА – приміщення 1-го поверху площею 98,8 кв.м. м. Сторожинець
ОРЕНДА – приміщення 1-го поверху площею 98,8 кв.м. м. Сторожинець
РекламироватьПоднять

Бизнес

Расстояние до ближайшего города: В городе

Расположение: Другое

Тип объекта: Другое

Этаж: 1

Этажность: 3

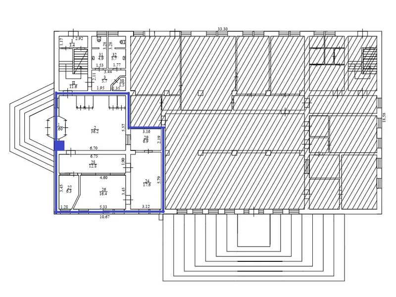
Общая площадь: 98.80 м²

Описание

Пропонується до оренди група приміщень 1-го поверху площею 98,80 кв. м. Будівля знаходиться в центральній частині міста Сторожинець, вул. Чернівецька, 4а, розвинена інфраструктура високі автомобільний та пішохідний потоки. Поряд знаходяться магазини, школа, нова пошта, садиби, районна лікарня та ін. Характеристики: - кількість поверхів – 3; - загальна площа – 1001,45 кв. м; - опалення – відсутнє; - площа запропонована до оренди – 98,80 кв. м; - земельна ділянка – 0,075 га (державний акт). Строк оренди 2 Роки 11 Місяців.

Початкова вартість: 8 595.6 грн. (З ПДВ)
Пропозиція актуальна до 10.02.2026

Дата проведення аукціону в системі Прозорро Продажі: 11.02.2026.

Для отримання повної інформації про об'єкт перейдіть за посиланням на аукціон-86664-

sale.uub.com.ua/auction/CLE001-UA-20260109-86664?promo_code=0040

Консультація та юридичний супровід персонального менеджера.
ID: 878774928

Связаться с продавцом

Сергій Вікторович

на OLX с апрель 2023 г.

Онлайн в 12:31

xxx xxx xxx

Опубликовано 25 февраля 2025 г.

ОРЕНДА – приміщення 1-го поверху площею 98,8 кв.м. м. Сторожинець

8 595.60 грн.

Местоположение

Location

Сторожинец

Черновицкая область

Бесплатное приложение для твоего телефона