Перейти к основному разделу
Чат
  • Укр
  • Рус

Уведомления

Подать объявление
Оренда паркомісця по вул. Стрийська
Оренда паркомісця по вул. Стрийська
Оренда паркомісця по вул. Стрийська
РекламироватьПоднять

Бизнес

Тип недвижимости: Место на паркинге

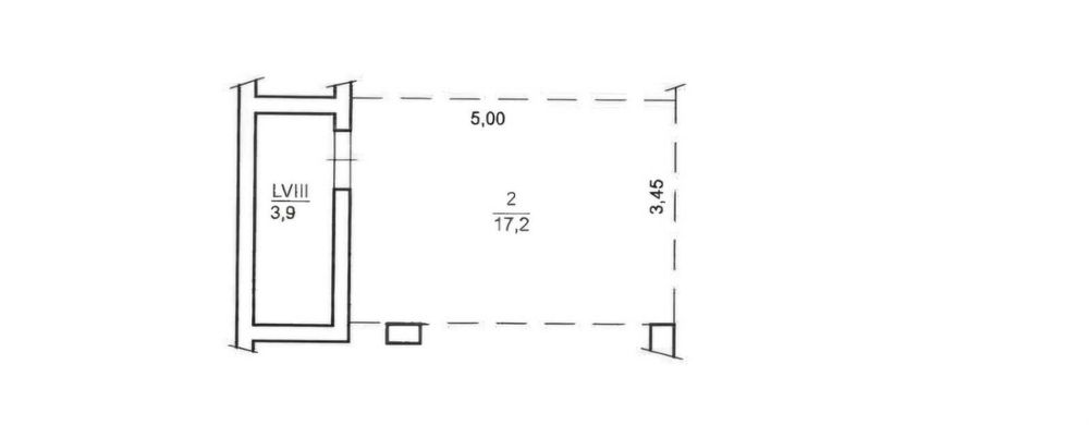
Общая площадь: 17 м²

Описание

Оренда паркомісця з коморою в новобудові вул. Стрийська 45Д.
Площа 17.2м² Хороше розміщення, зручний заїзд.
Ціна 2500 грн
06******96 Наталія АН Golden City
ID: 877500609

Связаться с продавцом

Наталя

на OLX с сентябрь 2019 г.

Онлайн в 15:46

xxx xxx xxx

Опубликовано 22 сентября 2025 г.

Оренда паркомісця по вул. Стрийська

2 500 грн.

Местоположение

Location

Львов, Франковский

Львовская область

Бесплатное приложение для твоего телефона