Бизнес
Расстояние до ближайшего города: В городе
Расположение: Часть здания
Этаж: 2
Этажность: 8
Общая площадь: 85 м²
Санузел: Да
Ремонт: Да
Описание
Пропонується в оренду офісне приміщення 84,4 м.кв. в ЖК Подол Град, вул. Дегтярна, 29
Офіс розташований у самому серці мальовничого району Воздвиженка, що поєднує діловий ритм міста та комфортне середовище для роботи.
Загальна інформація:
Подільський район, Воздвиженка
вул. Дегтярна 29
метро Контрактова площа
ЖК Подол Град
Площа: 84,4 м.кв.
Поверх 2/8
Сучасне світле офісне приміщення з якісним ремонтом в стилі лофт, виконаним в світлих кольорах. Розташоване на другому поверсі 8-поверхового будинку.
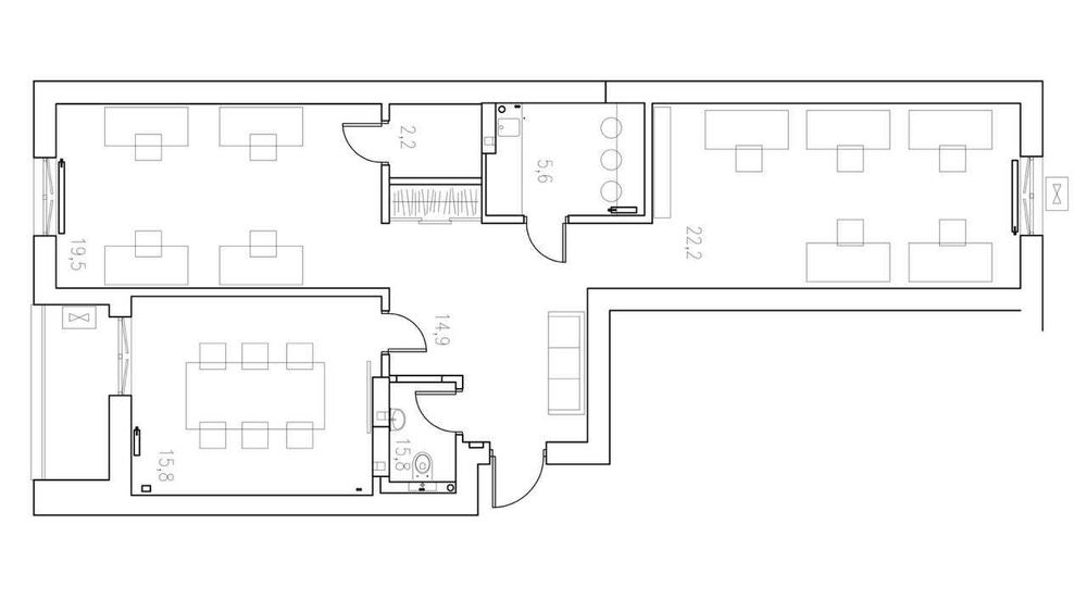
Планування:
2 кабінети: 22,2 м.кв., 19,5 м.кв.
Переговорна з виходом на відкриту лоджію 15,8 м.кв.
Хол 14,9 м.кв.
Кухня 5,6 м.кв.
Санвузол
Серверна
Кожен з кабінетів та переговорна офісу обладнані кондиціонерами. В холі наявна велика шафа для верхнього одягу та інших речей. В офіс заведено оптоволоконний інтернет. На території ЖК, в 1 хв ходи від офісу, розміщено паркінг, що також слугує укриттям.
Локація та інфраструктура:
⁃ престижність місцерозташування: офіс у цій локації підкреслює статусність компанії та формує позитивне враження у клієнтів.
⁃ близькість до ділового центру міста: за кілька хвилин - Контрактова площа, Андріївський узвіз, основні бізнес-хаби Подолу, що дозволяє швидко вирішувати робочі питання та проводити зустрічі.
⁃ зручна транспортна доступність: поруч знаходяться станції метро “Контрактова площа” та “Лук’янівська”, що забезпечує швидкий доступ працівників і партнерів.
⁃ архітектурна привабливість району
⁃ інфраструктура в пішій доступності
⁃ розвинена ділова екосистема
Телефонуйте, щоб отримати більше інформації про офіс та записатись на перегляд!
Офіс розташований у самому серці мальовничого району Воздвиженка, що поєднує діловий ритм міста та комфортне середовище для роботи.
Загальна інформація:
Подільський район, Воздвиженка
вул. Дегтярна 29
метро Контрактова площа
ЖК Подол Град
Площа: 84,4 м.кв.
Поверх 2/8
Сучасне світле офісне приміщення з якісним ремонтом в стилі лофт, виконаним в світлих кольорах. Розташоване на другому поверсі 8-поверхового будинку.
Планування:
2 кабінети: 22,2 м.кв., 19,5 м.кв.
Переговорна з виходом на відкриту лоджію 15,8 м.кв.
Хол 14,9 м.кв.
Кухня 5,6 м.кв.
Санвузол
Серверна
Кожен з кабінетів та переговорна офісу обладнані кондиціонерами. В холі наявна велика шафа для верхнього одягу та інших речей. В офіс заведено оптоволоконний інтернет. На території ЖК, в 1 хв ходи від офісу, розміщено паркінг, що також слугує укриттям.
Локація та інфраструктура:
⁃ престижність місцерозташування: офіс у цій локації підкреслює статусність компанії та формує позитивне враження у клієнтів.
⁃ близькість до ділового центру міста: за кілька хвилин - Контрактова площа, Андріївський узвіз, основні бізнес-хаби Подолу, що дозволяє швидко вирішувати робочі питання та проводити зустрічі.
⁃ зручна транспортна доступність: поруч знаходяться станції метро “Контрактова площа” та “Лук’янівська”, що забезпечує швидкий доступ працівників і партнерів.
⁃ архітектурна привабливість району
⁃ інфраструктура в пішій доступності
⁃ розвинена ділова екосистема
Телефонуйте, щоб отримати більше інформації про офіс та записатись на перегляд!
ID: 907686063
Связаться с продавцом
xxx xxx xxx
Опубликовано 31 декабря 2025 г.
Оренда офісного приміщення в ЖК Подол Град, вул. Дегтярна, Воздвиженка
50 000 грн.
Местоположение
Киев, Подольский
Киевская область