Бизнес
Расстояние до ближайшего города: В городе
Расположение: Отдельное помещение
Этаж: 1
Этажность: 5
Общая площадь: 160 м²
Отопление: Централизованное
Ремонт: Да
Комфорт: Кондиционер, Решетки на окнах, Пожарная сигнализация, Сигнализация, Парковочное место, Гостевой паркинг
Тип: Другой
Коммуникации: Центральный водопровод, Асфальтированная дорога, Центральная канализация
Описание
- Центрально Міський район
- пр.Центральний (вул. Лермонтова)
- зупинка "Центральний ринок"
Технічні характеристики:
- перший поверх п’ятиповерхового житлового будинку
- окремий вхід
- завантажувальний вхід
- парковка перед приміщенням
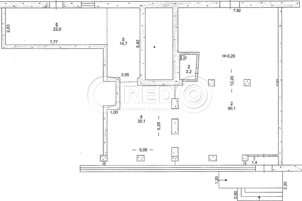
Планування об’єкту:
- загальна площа - 160кв.м
- торговельна зала-120 кв.м
- підсобні приміщення
- завантажувальний вхід
- гарний стан
- вітражний фасад
Комунікації:
- центральне опалення
- центральне електропостачання 5 кВт; 380 Вт
- центральне водопостачання
- центральна каналізація
- охоронна, пожежна сигналізації
Логістична розв’язка:
- магазин розташований по "червоній лінії"
- поруч зупинки громадського транспорту
- великий автомобільний та пішохідний трафік
Додаткові платежі:
- світло, вода - лічильники
- інтернет
- пожежна та охорона сигналізації
- комунальні послуги
- опалення в опалювальний сезон
Оренда магазину - 20 000 грн.
За будь-якими питаннями за цією або іншими пропозиціями звертайтесь за номером телефону.
З повагою, команда Credo!
Номер оголошення на сайті компанії: RC-202-269-LX.
- пр.Центральний (вул. Лермонтова)
- зупинка "Центральний ринок"
Технічні характеристики:
- перший поверх п’ятиповерхового житлового будинку
- окремий вхід
- завантажувальний вхід
- парковка перед приміщенням
Планування об’єкту:
- загальна площа - 160кв.м
- торговельна зала-120 кв.м
- підсобні приміщення
- завантажувальний вхід
- гарний стан
- вітражний фасад
Комунікації:
- центральне опалення
- центральне електропостачання 5 кВт; 380 Вт
- центральне водопостачання
- центральна каналізація
- охоронна, пожежна сигналізації
Логістична розв’язка:
- магазин розташований по "червоній лінії"
- поруч зупинки громадського транспорту
- великий автомобільний та пішохідний трафік
Додаткові платежі:
- світло, вода - лічильники
- інтернет
- пожежна та охорона сигналізації
- комунальні послуги
- опалення в опалювальний сезон
Оренда магазину - 20 000 грн.
За будь-якими питаннями за цією або іншими пропозиціями звертайтесь за номером телефону.
З повагою, команда Credo!
Номер оголошення на сайті компанії: RC-202-269-LX.
ID: 870146400
Связаться с продавцом
xxx xxx xxx
Опубликовано 10 декабря 2025 г.
Оренда магазину пр. Центральний
20 000 грн.
Местоположение
Кривой Рог, Центрально-Городской
Днепропетровская область