Бизнес
Тип дома: Жилой фонд от 2021 р.
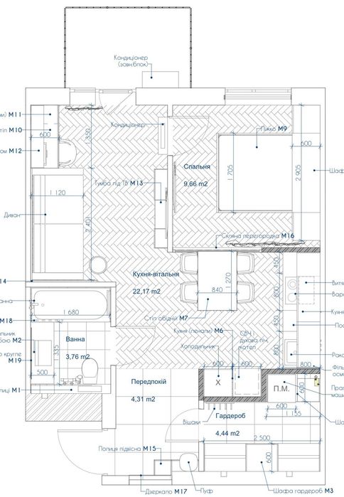
Этаж: 3
Этажность: 9
Общая площадь: 46 м²
Площадь кухни: 22 м²
Количество комнат: 1 комната
Отопление: Индивидуальное газовое
Ремонт: Авторский проект
Меблирование: С мебелью
Описание
Оренда шикарної 1кім. квартири в новобудові ЖК Авалон по вул. Замарстинівська 55. Чудова локація ближній центр в житловому комплексі є все необхіне, супермаркет, заклади харчування, пошта та інше, до центру 15хв ходьби. Вікна квартири виходять у внутрішній дворик. Площа 46м.кв знаходиться на 3/9 поверсі. Квартира має чудове планування, велику кухню-вітальню поділено на зони, спальню, гардероб та санвузол із ваною. Зроблений дорогий ремонт все нове є всі необхідні меблі та побутова техніка для комфортного проживання. Перше заселення. Є відео квартири. Вартість 800$. Більш детальніше телефонуйте Юрій.
ID: 906362419
Связаться с продавцом
xxx xxx xxx

