Бизнес
Без комиссии
Расстояние до ближайшего города: В городе
Расположение: Отдельное помещение
Тип объекта: Бизнес-центр
Этаж: 1
Этажность: 3
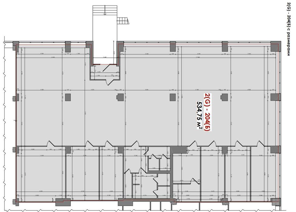
Общая площадь: 535 м²
Санузел: Да
Тип офиса: Open space
Отопление: Собственная котельная
Комфорт: Видеонаблюдение, Кондиционер, Консъерж, Пожарная сигнализация, Гостевой паркинг, Парковочное место, Охраняемая территория, Сигнализация, Автономный электрогенератор
Коммуникации: Центральная канализация, Электричество, Скважина
Инфраструктура (до 500 метров): Отделение банка, банкомат, Жилой массив, Парк, зелёная зона, Стоянка, парковка, гараж, Отделение почты
Описание
Потужний генератор, власна котельня на дровах, у нас завжди тепло!
Власна скважена з водою!
Пропонується в оренду світлий та просторий офіс площею 534,75 м2 в сучасному бізнес-центрі "Вікторія Парк".
Офіс розташований на 2 поверсі корпусу 2.
Завдяки вдалому плануванню та великим вікнам, приміщення наповнене природним світлом, що створює комфортні умови для роботи.
Змішане планування. Сучасний ремонт.
Облаштований санвузол.
Бізнес-центр складається із 4-х корпусів, загальною площею 24 000 м2;
Паркінг на 340 автомобілів, стоянка для велосипедів та зарядні станції для електрокарів.
Потужна інфраструктура бізнес-центру:
Генератор на потреби всіх споживачів;
Власна твердопаливна та газова котельня;
Банкомат та термінал;
Поштомат Нової Пошти;
Смачна кухня в їдальні та дві кавʼярні;
Кімната для йоги та спортивний майданчик у зеленій зоні;
Поряд з корпусами обладнані зони відпочинку просто неба.
Є дві альтанки з BBQ та стіл для пінг-понгу;
Стильні лаунж-зони у холах корпусів;
Резиденти БЦ можуть користуватись цими послугами безкоштовно, проводити івенти, корпоративи чи заняття йогою.
Ставка - $7.5 оренда + $5.72 орех + ПДВ.
Вартість приміщення з ПДВ - $9501 на місяць!
БЦ Вікторія Парк, пров. Охтирський, 7.
Forum Group - ваш надійний партнер у світі комерційної нерухомості!
Власна скважена з водою!
Пропонується в оренду світлий та просторий офіс площею 534,75 м2 в сучасному бізнес-центрі "Вікторія Парк".
Офіс розташований на 2 поверсі корпусу 2.
Завдяки вдалому плануванню та великим вікнам, приміщення наповнене природним світлом, що створює комфортні умови для роботи.
Змішане планування. Сучасний ремонт.
Облаштований санвузол.
Бізнес-центр складається із 4-х корпусів, загальною площею 24 000 м2;
Паркінг на 340 автомобілів, стоянка для велосипедів та зарядні станції для електрокарів.
Потужна інфраструктура бізнес-центру:
Генератор на потреби всіх споживачів;
Власна твердопаливна та газова котельня;
Банкомат та термінал;
Поштомат Нової Пошти;
Смачна кухня в їдальні та дві кавʼярні;
Кімната для йоги та спортивний майданчик у зеленій зоні;
Поряд з корпусами обладнані зони відпочинку просто неба.
Є дві альтанки з BBQ та стіл для пінг-понгу;
Стильні лаунж-зони у холах корпусів;
Резиденти БЦ можуть користуватись цими послугами безкоштовно, проводити івенти, корпоративи чи заняття йогою.
Ставка - $7.5 оренда + $5.72 орех + ПДВ.
Вартість приміщення з ПДВ - $9501 на місяць!
БЦ Вікторія Парк, пров. Охтирський, 7.
Forum Group - ваш надійний партнер у світі комерційної нерухомості!
ID: 882453750
Связаться с продавцом
xxx xxx xxx

