Бизнес
Вид объекта: Новостройка
Название ЖК: Ok'land
Этаж: 2
Этажность: 25
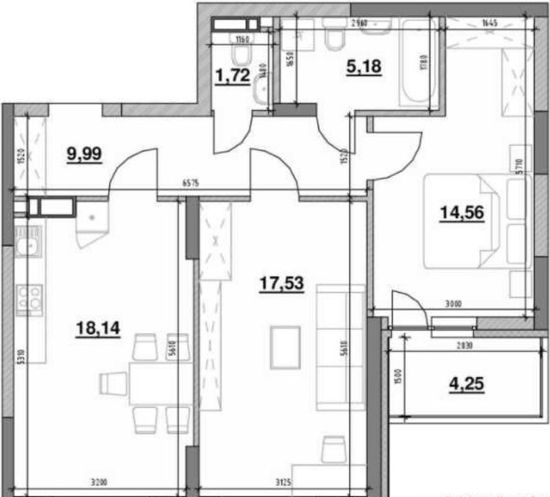
Общая площадь: 72 м²
Площадь кухни: 19 м²
Тип стен: Монолитный
Класс жилья: Комфорт
Количество комнат: 2 комнаты
Отопление: Собственная котельная
Ремонт: После строителей
Меблирование: Нет
Комфорт: Видеонаблюдение, Консъерж, Лифт, Подземный паркинг, Парковочное место, Охраняемая территория
Коммуникации: Вывоз отходов
Инфраструктура (до 500 метров): Отделение банка, банкомат, Аптека, Больница, поликлиника, Детский сад, Рынок, Парк, зелёная зона, Детская площадка, Отделение почты, Бювет, Ресторан, кафе, Школа, Магазин, киоск, Супермаркет, ТРЦ, Остановка транспорта
Ландшафт (до 1 км.): Парк
Описание
Продаж сучасної 2-кімнатної квартири в ЖК “ОК’LAND” (Окленд), будинок №1
Шукаєте комфортне, безпечне й вигідне житло? Ця квартира саме для вас!
Квартира:
Простора роздільна 2-кімнатна квартира загальною площею 72 м², із великою кухнею-їдальнею 19 м² та житловою площею 33 м².
Розташована на 2-му поверсі 25-поверхового будинку — оптимальне рішення під час воєнного стану: достатньо високо від землі, щоб уникати надмірного шуму і пилу, але зручно та швидко спуститися у разі повітряної тривоги.
Будинок введений в експлуатацію.
Ключі на руках.
Можливе підписання права власності – адреса присвоєна.
Продаж по переуступці – мінімальне переоформлення, лише 1%.
Основні характеристики
Стан: після будівельників з лазерною стяжкою підлоги — ідеальна основа для вашого дизайну.
Опалення: автономна котельня на даху — стабільне тепло у будь-яку погоду.
Комунікації: центральне водопостачання, каналізація, електрика.
Встановлені радіатори, лічильники, вхідні двері, пожежна сигналізація.
Про комплекс “ОК’LAND”
Технологія будівництва: монолітно-каркасна, стіни — газоблок + цегла.
Закрита територія з цілодобовою охороною та системою відеоспостереження — безпечне середовище для вас і вашої родини.
Підземний дворівневий паркінг, дитячі майданчики, зони відпочинку.
Зручна локація: поруч транспорт, магазини, уся необхідна інфраструктура.
Чому варто обрати саме цей варіант
Безпечний 2-й поверх — комфорт і спокій у будь-який час.
Новий будинок, усе підготовлено до ремонту під ваш смак.
Надійний комплекс із сучасною системою безпеки.
Мінімальні витрати при оформленні — лише 1%.!
Ідеально підходить як для власного проживання, так і для інвестиції.
ЖК “ОК’LAND” – дім, у якому поєднано безпеку, якість і комфорт сучасного життя.
Шукаєте комфортне, безпечне й вигідне житло? Ця квартира саме для вас!
Квартира:
Простора роздільна 2-кімнатна квартира загальною площею 72 м², із великою кухнею-їдальнею 19 м² та житловою площею 33 м².
Розташована на 2-му поверсі 25-поверхового будинку — оптимальне рішення під час воєнного стану: достатньо високо від землі, щоб уникати надмірного шуму і пилу, але зручно та швидко спуститися у разі повітряної тривоги.
Будинок введений в експлуатацію.
Ключі на руках.
Можливе підписання права власності – адреса присвоєна.
Продаж по переуступці – мінімальне переоформлення, лише 1%.
Основні характеристики
Стан: після будівельників з лазерною стяжкою підлоги — ідеальна основа для вашого дизайну.
Опалення: автономна котельня на даху — стабільне тепло у будь-яку погоду.
Комунікації: центральне водопостачання, каналізація, електрика.
Встановлені радіатори, лічильники, вхідні двері, пожежна сигналізація.
Про комплекс “ОК’LAND”
Технологія будівництва: монолітно-каркасна, стіни — газоблок + цегла.
Закрита територія з цілодобовою охороною та системою відеоспостереження — безпечне середовище для вас і вашої родини.
Підземний дворівневий паркінг, дитячі майданчики, зони відпочинку.
Зручна локація: поруч транспорт, магазини, уся необхідна інфраструктура.
Чому варто обрати саме цей варіант
Безпечний 2-й поверх — комфорт і спокій у будь-який час.
Новий будинок, усе підготовлено до ремонту під ваш смак.
Надійний комплекс із сучасною системою безпеки.
Мінімальні витрати при оформленні — лише 1%.!
Ідеально підходить як для власного проживання, так і для інвестиції.
ЖК “ОК’LAND” – дім, у якому поєднано безпеку, якість і комфорт сучасного життя.
ID: 914123709
Связаться с продавцом
xxx xxx xxx
Опубликовано 25 февраля 2026 г.
Okland Продаж 2 кімнатної квартири ( Ok'land okland окланд)
99 999 $
Местоположение
Киев, Соломенский
Киевская область