Бизнес
Без комиссии
Расстояние до ближайшего города: В городе
Расположение: Отдельное помещение
Тип объекта: Бизнес-центр
Этаж: 3
Этажность: 3
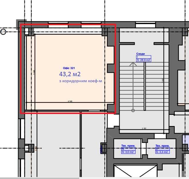
Общая площадь: 44 м²
Год постройки / сдачи: 1990 - 2000
Тип офиса: Кабинетный тип
Отопление: Собственная котельная
Класс офиса: Категория B
Ремонт: Да
Комфорт: Видеонаблюдение, Кондиционер, Консъерж, Лифт, Пожарная сигнализация, Гостевой паркинг, Парковочное место, Охраняемая территория, Грузовой лифт, Автономный электрогенератор
Меблирование: Нет
Бытовая техника: Без бытовой техники
Коммуникации: Асфальтированная дорога, Центральная канализация, Электричество, Вывоз отходов, Газ, Центральный водопровод
Инфраструктура (до 500 метров): Отделение банка, банкомат, Аптека, Шоссе, трасса, Больница, поликлиника, Жилой массив, Офисы, бизнес центр, Стоянка, парковка, гараж, Отделение почты, ЖД станция, Ресторан, кафе, бар, Транспортная развязка
Описание
за окрему оплату, можливе підключення дизельного генератора до офісу!
ОФІС НА ПОДОЛІ в бізнес-центрі Валмі, вул. Новоконстантинівська, 13/10.
Власник. Без комісії.
Площа: 43.20 м.кв (з урахуванням коефіцієнта загальних площ) - 1 кабінет
Кондиціонування.
Сан вузол, гарної якості, на поверсі.
Ціна оренди - 300 Грн./кв.метр + ПДВ
+ Комунальні з експлуатаційними (приблизно 100-150 грн/м2 влітку, 200-250 взимку)
На території БЦ, є власна, охороняєма парковка 24/7, під відеонаглядом
Ціна аренди паркомісця: 2500 грн + ПДВ
Пропонуємо у довгострокову оренду офісні приміщення у БЦ Валмі.
Бізнес центр знаходиться у Подільському районі Києва за адресою:
вул. Новокостянтинівська, 13/10.
Офіс у БЦ Валмі:
• офіс у бізнес центрі класу В,
• презентабельний інтер'єр у класичному стилі,
• два пасажирські та два вантажні ліфти,
• сучасні інженерні системи,
• охорона 24/7, цілодобова система відеоспостереження,
• закрита парковка, що охороняється,
• конкурентна орендна ставка,
• обладнаний конференц-зал, на 30 осіб,
• кафе з бізнес-ланчами.
Співпрацюємо з ріелторами. Виплачуємо комісійні.
Связаться с продавцом
xxx xxx xxx

