Бизнес
Без комиссии
Расстояние до ближайшего города: В городе
Расположение: Отдельное помещение
Тип объекта: Торгово-офисный центр
Этаж: 6
Этажность: 10
Общая площадь: 2 500 м²
Год постройки / сдачи: 2001 - 2010
Санузел: Да
Тип офиса: Open space
Отопление: Собственная котельная
Класс офиса: Категория B
Ремонт: Да
Комфорт: Видеонаблюдение, Кондиционер, Балкон, лоджия, Лифт, Пожарная сигнализация, Гараж, Подземный паркинг, Гостевой паркинг, Мебель на кухне, Панорамные окна, Парковочное место, Охраняемая территория, Грузовой лифт, Душевая кабина, Автономный электрогенератор, Хоз. помещение, кладовка, Терраса, Гардероб
Меблирование: Нет
Бытовая техника: Кулер, Электрочайник, Вентилятор, обогреватель, Холодильник, Микроволновая печь, Посудомоечная машина
Коммуникации: Асфальтированная дорога, Центральная канализация, Электричество, Вывоз отходов, Газ, Центральный водопровод
Инфраструктура (до 500 метров): Отделение банка, банкомат, Центр города, Аптека, Шоссе, трасса, Жилой массив, Метро, Офисы, бизнес центр, Стоянка, парковка, гараж, Отделение почты, Ресторан, кафе, бар, Учебные заведения, Супермаркет, ТРЦ, Транспортная развязка
Описание
Бизнес центр Соsmo, на базе торгово-развлекательного комплекса Соsmo multimoll, предлагает офисные помещения с ремонтом Лофт и развитой инфраструктурой. Адрес: В. Гетьмана, 6, до М. Шулявка, 7 минут пеше.
Арендаторы могут пользоваться большим паркингом, ресторанами, кафе. В здании имеется комплекс из самых больших конференц залов в Киеве, а также отель, для размещения гостей и партнеров.
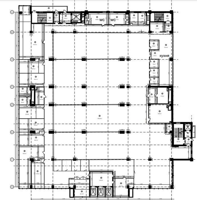
Предлагаем офисное помещение, которое размещено на 6 этаже и занимает 2500 кв.м., с учетом коридорного коеф-та.
Открытая планировка с оборудованными рабочими зонами, комнаты переговоров, отдельные кабинеты, зона рецепции, просторная оборудованная кухня, 2 больших сан. узла, гардеробная.
Арендная ставка - 4 долл/кв.метр + НДС
Орех - 6 долл/кв.метр + НДС
Коммунальные оплачиваются отдельно.
Связаться с продавцом
xxx xxx xxx

