Бизнес
Вид объекта: Новостройка
Этаж: 1
Этажность: 10
Общая площадь: 38.86 м²
Площадь кухни: 12.39 м²
Количество комнат: 1 комната
Санузел: Смежный
Ремонт: После строителей
Меблирование: Нет
Комфорт: Подземный паркинг
Описание
Без комісії для покупця!
Продається однокімнатна новобудова від надійного забудовника у парковій зоні, престижний район.
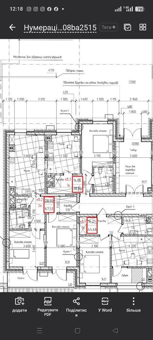
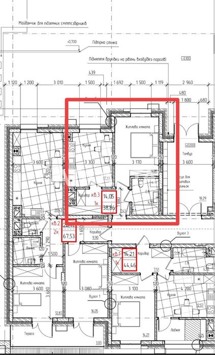
Ідеальний перший поверх - 38,86м2 у малоквартирному елітному будинку.
Квартира знаходиться у середині (не кутова), гарне планування:
- кімната - 14,05 м2;
- кухня - 12,39 м2;
- ванна - 4,99 м2;
- коридор - 7,43м2.
Головною перевагою є розтермінування на період будівництва. Перший внесок 30 %. Решту раз у квартал чи у пів року. (Плановий період будівництва - 1,5 - 2 роки)
Будинок однопідїздний.
Найкраща транспортна розв'язка.
До парку Шевченка - 900 м.
У кроковій доступності 300 м. до вулиці Проспект Незалежності, Головна, Небесної Сотні.
Вигідна інвестиція як себе, так і для оренди. (Перший поверх може підійти у такий локації та для здачі під офіс).
Телефонуйте для вдалої інвестиції з АТЛАНТОЮ!!! До зустрічі на офісі!
Код об'єкта: k108`367149`14. АН "Атланта".
Більше інформації та світлин за посиланням: https://www.atlanta.ua/chernovtsy/object/1komnatnye/367149
Продається однокімнатна новобудова від надійного забудовника у парковій зоні, престижний район.
Ідеальний перший поверх - 38,86м2 у малоквартирному елітному будинку.
Квартира знаходиться у середині (не кутова), гарне планування:
- кімната - 14,05 м2;
- кухня - 12,39 м2;
- ванна - 4,99 м2;
- коридор - 7,43м2.
Головною перевагою є розтермінування на період будівництва. Перший внесок 30 %. Решту раз у квартал чи у пів року. (Плановий період будівництва - 1,5 - 2 роки)
Будинок однопідїздний.
Найкраща транспортна розв'язка.
До парку Шевченка - 900 м.
У кроковій доступності 300 м. до вулиці Проспект Незалежності, Головна, Небесної Сотні.
Вигідна інвестиція як себе, так і для оренди. (Перший поверх може підійти у такий локації та для здачі під офіс).
Телефонуйте для вдалої інвестиції з АТЛАНТОЮ!!! До зустрічі на офісі!
Код об'єкта: k108`367149`14. АН "Атланта".
Більше інформації та світлин за посиланням: https://www.atlanta.ua/chernovtsy/object/1komnatnye/367149
ID: 906088565
Связаться с продавцом
xxx xxx xxx

