Бизнес
Вид объекта: Новостройка
Готов сотрудничать с риэлторами
Тип дома: Жилой фонд от 2021 р.
Название ЖК: Валентинівська
Этаж: 3
Этажность: 9
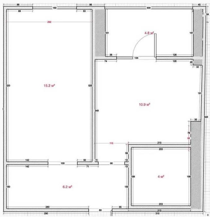
Общая площадь: 40 м²
Площадь кухни: 11 м²
Тип стен: Кирпичный
Количество комнат: 1 комната
Планировка: Раздельная
Санузел: Смежный
Отопление: Централизованное
Ремонт: После строителей
Комфорт: Балкон, лоджия, Лифт, Гостевой паркинг
Коммуникации: Асфальтированная дорога, Центральная канализация, Электричество, Вывоз отходов, Центральный водопровод
Инфраструктура (до 500 метров): Аптека, Рынок, Парк, зелёная зона, Детская площадка, Отделение почты, Ресторан, кафе, Магазин, киоск, Супермаркет, ТРЦ, Остановка транспорта
Описание
Продам 1 кімнатну квартиру в цегляному новобудові ЖК Валентинівська .
Розташована на третьому поверсі дев'ятиповерхового будинку.
У квартирі стондартний будівельний стан.
Встановлено метало-пластикові вікна, металеві вхідні двері, радіатори опалення, міжкімнатні перегородки, введення електрики, введення води та каналізації
Санвузол поєднаний, фасад будинку утеплено.
Ціна 13500
Хороше розташування будинку поруч транспорт, супермаркет АТБ, КЛАС, ринок, школа, дитячий садок.
Розташована на третьому поверсі дев'ятиповерхового будинку.
У квартирі стондартний будівельний стан.
Встановлено метало-пластикові вікна, металеві вхідні двері, радіатори опалення, міжкімнатні перегородки, введення електрики, введення води та каналізації
Санвузол поєднаний, фасад будинку утеплено.
Ціна 13500
Хороше розташування будинку поруч транспорт, супермаркет АТБ, КЛАС, ринок, школа, дитячий садок.
ID: 902086151
Связаться с продавцом
xxx xxx xxx

