Бизнес
Этажность: 1
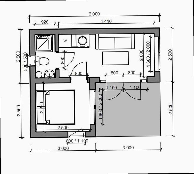
Общая площадь: 23 м²
Количество комнат: 1
Площадь участка: 1 соток
Тип дома: Модульные дома
Меблирование: Да
Описание
Мобільний будинок 23 м² для складних ділянок
Маєте ділянку на схилі, з вузьким заїздом або обмеженим простором? Це не проблема. Пропонуємо компактний будинок, що складається з двох модулів. Така конструкція дозволяє доставити та встановити житло навіть там, де звичайне будівництво неможливе.
Ідеальний варіант для дачі вихідного дня або гостьового будиночка.
Переваги: Головний плюс — мобільність. Будинок приїжджає готовим. Незважаючи на компактність, це тепле житло з повноцінним утепленням (200 мм підлога/стеля) та якісними вікнами.
Характеристики:
Площа: житлова 23 м² + тераса 7 м².
Конструкція: каркас із деревини, утеплення базальтовою ватою, захист від гризунів.
Комунікації: розведена мідна електрика (ВВГнгд), встановлені розетки та вимикачі, підготовка під сантехніку.
Оздоблення: імітація бруса (всередині та зовні), ламінат, вагонка на стелі.
Вікна: п’ятикамерний профіль, двокамерний склопакет.
Пропозиція: Повна вартість комплекту (будинок + тераса) — 14 750 $. В ціну входить монтаж на вашій території.
Телефонуйте, щоб обговорити доставку на вашу ділянку
Маєте ділянку на схилі, з вузьким заїздом або обмеженим простором? Це не проблема. Пропонуємо компактний будинок, що складається з двох модулів. Така конструкція дозволяє доставити та встановити житло навіть там, де звичайне будівництво неможливе.
Ідеальний варіант для дачі вихідного дня або гостьового будиночка.
Переваги: Головний плюс — мобільність. Будинок приїжджає готовим. Незважаючи на компактність, це тепле житло з повноцінним утепленням (200 мм підлога/стеля) та якісними вікнами.
Характеристики:
Площа: житлова 23 м² + тераса 7 м².
Конструкція: каркас із деревини, утеплення базальтовою ватою, захист від гризунів.
Комунікації: розведена мідна електрика (ВВГнгд), встановлені розетки та вимикачі, підготовка під сантехніку.
Оздоблення: імітація бруса (всередині та зовні), ламінат, вагонка на стелі.
Вікна: п’ятикамерний профіль, двокамерний склопакет.
Пропозиція: Повна вартість комплекту (будинок + тераса) — 14 750 $. В ціну входить монтаж на вашій території.
Телефонуйте, щоб обговорити доставку на вашу ділянку
ID: 912540849
Связаться с продавцом
xxx xxx xxx
Опубликовано 27 января 2026 г.
На будь-яку ділянку ‼️ Мобільний будинок 23м2 тераса | каркасний дім
14 750 $
Договорная
Местоположение
Броды
Львовская область