Бизнес
Вид объекта: Новостройка
Без комиссии
Возможность обмена
Готов сотрудничать с риэлторами
Тип дома: Жилой фонд от 2021 р.
Название ЖК: В4
Этаж: 2
Год ввода в эксплуатацию: 2 026
Этажность: 8
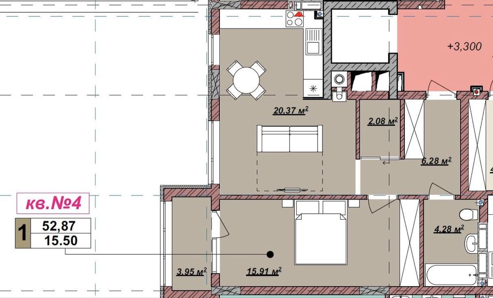
Общая площадь: 53 м²
Тип сделки: Переуступка
Площадь кухни: 25 м²
Тип стен: Кирпичный
Класс жилья: Элит
Количество комнат: 1 комната
Планировка: Раздельная
Санузел: Смежный
Отопление: Индивидуальное газовое
Ремонт: После строителей
Меблирование: Нет
Комфорт: Охраняемая территория, Парковочное место, Панорамные окна, Подземный паркинг, Гардероб, Видеонаблюдение, Балкон, лоджия, Лифт
Коммуникации: Асфальтированная дорога, Газ, Центральная канализация, Вывоз отходов, Электричество, Центральный водопровод
Инфраструктура (до 500 метров): Рынок, Бювет, Больница, поликлиника, Кинотеатр, театр, Парк, зелёная зона, Отделение банка, банкомат, Детский сад, Магазин, киоск, Школа, Аптека, Супермаркет, ТРЦ, Центр города, Отделение почты, Ресторан, кафе, Детская площадка, Остановка транспорта
Инклюзивность: Наличие контрастных маркировок, Поручни на лестнице, Тактильные полосы на полу, Широкая дверь в подъезде (от 0,9 м.), Вход в уровень с улицей
Описание
2 поверх житловий, на 1му поверсі також квартири, то ж у Вас внутрішня тепленька квартира.
Характеристики квартири:
• Будинок оснащений ліфтом
• Підземний паркінг – завжди зручне місце для вашого авто
• Газове індивідуальне опалення – економічність і комфорт
Можлива покупка паркомісця за 9000$.
Здача в будинку в експлуатацію весна 2026 року.
Будинок побудований, йде оснащення котлами, і доробляють ремонти в підʼїздах.
Будинок не виходить на центральну вулицю, дуже тихо та спокійно, при тому що зупинка громадського транспорту в 3х хвилинах ходьби.
До центрального парку Боздош 7 хвилин пішки.
Продаж без додаткових оплат.
Договір переуступки за рахунок власника.
Квартира світові простора 53 м.кв. Планування «для себе», ідеальна інвестиція або затишна домівка.
Связаться с продавцом
xxx xxx xxx
Квартира в комплексі В4 від власника.
65 500 $
Местоположение
Ужгород
Закарпатская область
