Бизнес
Вид объекта: Новостройка
Название ЖК: ЖК Ріел Сіті
Этаж: 10
Этажность: 12
Общая площадь: 62 м²
Площадь кухни: 25 м²
Тип стен: Монолитный
Количество комнат: 1 комната
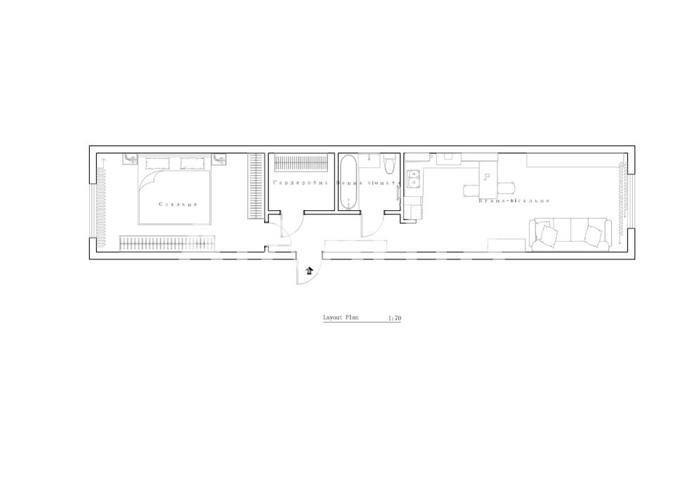
Планировка: Раздельная
Санузел: Смежный
Отопление: Индивидуальное газовое
Ремонт: Евроремонт
Меблирование: Да
Комфорт: Гостевой паркинг
Описание
Квартира у Ріел Сіті — комфортне житло з майже готовим ремонтом, скоро будуть оновлені фото
Державні програми до обговорення!
Ціна вказана за квартиру з частковим ремонтом, у даному випадку вона буде вигідніше, ніж із закінченим ремонтом
Електрика, сантехніка, якісна розводка опалення, стяжка підлоги, штукатурка стін.
Куплені міжкімнатні двері, ламінат, унітаз, дзеркало в ванну, розсувні дзеркальні двері в гардероб для спальні, в гарднробній кімнаті дві шафи, кухня, люстри і сплачена передоплата за натяжну стелю.
Процес ремонту продовжується.
Власна котельня забезпечує економне опалення та комфортний мікроклімат у квартирі. Завдяки продуманому двосторонньому плануванню простір можна раціонально облаштувати під будь-які потреби. Для авто передбачено підземний паркінг у сусідній секції.
Локація має все необхідне для щоденного життя: сім хвилин до залізничного вокзалу, п’ятнадцять хвилин до центру. Поруч торговий центр «ВАМ», супермаркети «Сільпо» та «АТБ», ринок, клініка «Веселка». Для прогулянок — лісопарк Білогорща, а також неподалік є школи, садочки, аптеки й зупинки громадського транспорту.
Квартира стане чудовим вибором як для проживання, так і для інвестування під оренду у перспективному районі Львова.
Телефонуйте, щоб дізнатися більше та домовитися про перегляд
Код об’єкта 359570
Можливе придбання в кредит за програмою єОселя 3%, 7%, єОселя 7% (ВПО)
Код об'єкта: k107.7`392842`276. АН "Атланта".
Більше інформації та світлин за посиланням: https://www.atlanta.ua/uk/lvov/object/1komnatnye/392842
Державні програми до обговорення!
Ціна вказана за квартиру з частковим ремонтом, у даному випадку вона буде вигідніше, ніж із закінченим ремонтом
Електрика, сантехніка, якісна розводка опалення, стяжка підлоги, штукатурка стін.
Куплені міжкімнатні двері, ламінат, унітаз, дзеркало в ванну, розсувні дзеркальні двері в гардероб для спальні, в гарднробній кімнаті дві шафи, кухня, люстри і сплачена передоплата за натяжну стелю.
Процес ремонту продовжується.
Власна котельня забезпечує економне опалення та комфортний мікроклімат у квартирі. Завдяки продуманому двосторонньому плануванню простір можна раціонально облаштувати під будь-які потреби. Для авто передбачено підземний паркінг у сусідній секції.
Локація має все необхідне для щоденного життя: сім хвилин до залізничного вокзалу, п’ятнадцять хвилин до центру. Поруч торговий центр «ВАМ», супермаркети «Сільпо» та «АТБ», ринок, клініка «Веселка». Для прогулянок — лісопарк Білогорща, а також неподалік є школи, садочки, аптеки й зупинки громадського транспорту.
Квартира стане чудовим вибором як для проживання, так і для інвестування під оренду у перспективному районі Львова.
Телефонуйте, щоб дізнатися більше та домовитися про перегляд
Код об’єкта 359570
Можливе придбання в кредит за програмою єОселя 3%, 7%, єОселя 7% (ВПО)
Код об'єкта: k107.7`392842`276. АН "Атланта".
Більше інформації та світлин за посиланням: https://www.atlanta.ua/uk/lvov/object/1komnatnye/392842
ID: 913533877
Связаться с продавцом
xxx xxx xxx

