Бизнес
Вид объекта: Новостройка
Без комиссии
Тип дома: Жилой фонд от 2021 р.
Этаж: 9
Этажность: 9
Общая площадь: 84 м²
Площадь кухни: 15 м²
Количество комнат: 3 комнаты
Планировка: Многоуровневая
Ремонт: После строителей
Комфорт: Видеонаблюдение, Лифт, Пожарная сигнализация, Гостевой паркинг, Панорамные окна, Парковочное место, Охраняемая территория, Грузовой лифт, Автономный электрогенератор
Коммуникации: Асфальтированная дорога, Центральная канализация, Электричество, Вывоз отходов, Газ, Центральный водопровод
Инфраструктура (до 500 метров): Отделение банка, банкомат, Кинотеатр, театр, Больница, поликлиника, Детский сад, Метро, Парк, зелёная зона, Детская площадка, Отделение почты, Ресторан, кафе, Школа, Магазин, киоск, Супермаркет, ТРЦ, Остановка транспорта
Ландшафт (до 1 км.): Лес, Парк, Река
Инклюзивность: Лифт размером не менее 1,1х1,4 м., Голосовые уведомления в лифте, Наличие контрастных маркировок, Вход в уровень с улицей, Тактильные полосы на полу
Описание
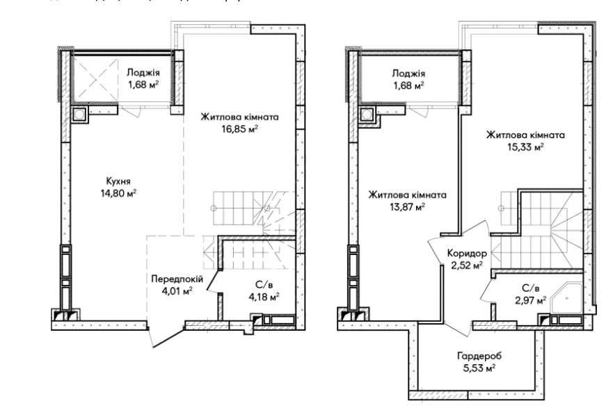
Площа — 84.42 м²
Ціна лише 42 000 грн/м²
Світла та простора трикімнатна квартира з гармонійним розподілом зон: велика кухня-вітальня, дві спальні, гардеробна та лоджія.
Ідеальний варіант для сім’ї, яка цінує комфорт, тишу й сучасну інфраструктуру.
Можливість оформлення у розстрочку
Енергоефективні вікна Rehau, якісні вхідні двері, всі лічильники
Індивідуальне газове опалення — тепло й економно
На території — школа, дитсадок, кав’ярні, магазини, спорткомплекс Спорт Сіті
Затишне житло від забудовника “Синергія” — комфорт, якість і продумана інфраструктура в самому серці Ірпеня.
Связаться с продавцом
xxx xxx xxx
