Бизнес
Состояние: Б/у
Описание
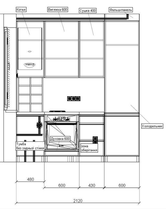
Пропоную індивідуальні проєкти кухонь, які точно підходять до вашого приміщення та стилю. Роблю повний технічний проєкт, включно з:
-точними розмірами та кресленнями;
-деталізацією під фурнітуру та направляючі;
-підбором матеріалів та фурнітури під ваш бюджет;
-підготовкою до виготовлення у ВіЯр (коректна присадка, свердління, розмітка).
Працюю прозоро: оплата матеріалів — по рахунках постачальника. Вартість проєкту 10-20% визначається після точного прорахунку за вашими розмірами та обраними матеріалами.
Знаходжусь у Вінниці.
Замовлення роблю через всі філіали ВіЯр в Україні та Польщі. Надаю свою ЗНИЖКУ мебляра.
Більше 20 років досвіду у конструюванні корпусних меблів. Звертайтесь, домовимось.
-точними розмірами та кресленнями;
-деталізацією під фурнітуру та направляючі;
-підбором матеріалів та фурнітури під ваш бюджет;
-підготовкою до виготовлення у ВіЯр (коректна присадка, свердління, розмітка).
Працюю прозоро: оплата матеріалів — по рахунках постачальника. Вартість проєкту 10-20% визначається після точного прорахунку за вашими розмірами та обраними матеріалами.
Знаходжусь у Вінниці.
Замовлення роблю через всі філіали ВіЯр в Україні та Польщі. Надаю свою ЗНИЖКУ мебляра.
Більше 20 років досвіду у конструюванні корпусних меблів. Звертайтесь, домовимось.
ID: 910968508
Связаться с продавцом
xxx xxx xxx
Опубликовано 19 января 2026 г.
Кухні проєкт під ВіЯр
1 000 грн.
Местоположение