Бизнес
Продажа от застройщика
Без комиссии
Расстояние до ближайшего города: до 5 км.
Этажность: 2
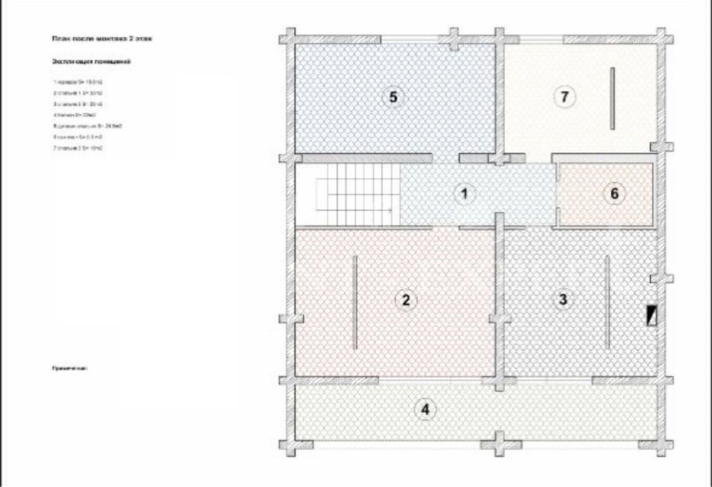
Общая площадь: 260 м²
Количество комнат: 4
Площадь участка: 11 соток
Тип дома: Дом
Год постройки / сдачи: После 2015
Тип стен: Деревянный
Внешнее утепление стен: Минеральная вата
Санузел: 2 и более
Отопление: Индивидуальное электро
Меблирование: Нет
Коммуникации: Асфальтированная дорога, Электричество, Вывоз отходов, Канализация септик, Скважина
Ландшафт (до 1 км.): Лес, Озеро
Описание
Продаж класного нового будинку (зруб) у сосновому лісі.
БУДАЛИ ДЛЯ СЕБЕ з найкращих матеріалів - ДУЖЕ ЯКІСНО! І багато вклали!
5 хвилин від Бучанського парку в ДУЖЕ ПРЕСТИЖНОМУ ЧУДОВОМ МІСЦІ в Блиставиці!
ЧАСТИННИЙ РЕМОНТ.
Площа будинку 260 кв.
Площа ділянки – 11 соток. На території: басейн, альтанка 50 кв.м. з 5 видами барбекю, лазня 70 кв.м., підвал з готовими морозильними камерами 30 кв.м.
ВАРТІСТЬ: 229 000$
Будинок біля лісу для тих, хто шукає не ідеальну картинку, а потенціал.
Цей дім будували для себе — з любов’ю, на совість, з мрією про життя поруч із природою. Але життя внесло свої корективи: останні три роки тут не жили, і зараз будинок потребує турботливого господаря, який вдихне в нього нове життя.
Простора ділянка біля лісу — тиша, свіже повітря, повна приватність.
Басейн, який чекає на відновлення.
Зручне планування, продумане під комфортну сімейну оселю.
Що потрібно:
Господар з руками і баченням: оновити внутрішні приміщення, навести лад на ділянці, доглянути басейн.
Людина, яка шукає не «глянцевий готовий продукт», а можливість створити простір під себе.
Це не варіант для тих, хто хоче «заїхати і жити». Це — шанс для тих, хто бачить цінність у місці, природі, масштабі й готовий зробити будинок своїм.
Звертайтесь, якщо вам відгукується.
БУДАЛИ ДЛЯ СЕБЕ з найкращих матеріалів - ДУЖЕ ЯКІСНО! І багато вклали!
5 хвилин від Бучанського парку в ДУЖЕ ПРЕСТИЖНОМУ ЧУДОВОМ МІСЦІ в Блиставиці!
ЧАСТИННИЙ РЕМОНТ.
Площа будинку 260 кв.
Площа ділянки – 11 соток. На території: басейн, альтанка 50 кв.м. з 5 видами барбекю, лазня 70 кв.м., підвал з готовими морозильними камерами 30 кв.м.
ВАРТІСТЬ: 229 000$
Будинок біля лісу для тих, хто шукає не ідеальну картинку, а потенціал.
Цей дім будували для себе — з любов’ю, на совість, з мрією про життя поруч із природою. Але життя внесло свої корективи: останні три роки тут не жили, і зараз будинок потребує турботливого господаря, який вдихне в нього нове життя.
Простора ділянка біля лісу — тиша, свіже повітря, повна приватність.
Басейн, який чекає на відновлення.
Зручне планування, продумане під комфортну сімейну оселю.
Що потрібно:
Господар з руками і баченням: оновити внутрішні приміщення, навести лад на ділянці, доглянути басейн.
Людина, яка шукає не «глянцевий готовий продукт», а можливість створити простір під себе.
Це не варіант для тих, хто хоче «заїхати і жити». Це — шанс для тих, хто бачить цінність у місці, природі, масштабі й готовий зробити будинок своїм.
Звертайтесь, якщо вам відгукується.
ID: 798028029
Связаться с продавцом
xxx xxx xxx
Опубликовано 19 февраля 2026 г.
Котедж ЗРУБ 11 соток з Басейном та Банею ! Біля лісу
229 000 $
Договорная
Местоположение
Буча
Киевская область
