Бизнес
Без комиссии
Расстояние до ближайшего города: В городе
Этажность: 1
Общая площадь: 70 м²
Количество комнат: 2
Площадь участка: 1.60 соток
Тип дома: Коттедж
Год постройки / сдачи: На этапе строительства
Тип стен: Кирпичный
Внешнее утепление стен: Пенопласт
Тип кровли: Металлочерепица
Отопление: Индивидуальное электро
Меблирование: Нет
Коммуникации: Электричество, Канализация септик, Скважина
Описание
Продаж котеджів напряму від забудовника. Без комісійних для покупця.
Масив Макарова, 300 метрів від 3 поліклініки
Площа - 70 кв.м
Ділянка середнього - 1,6 сот
Кутового - 2,5 сот
Кутового - 7 сот
Комунікації: електрика 7кВт, септик 9 кубів і свердловина. Усі комунікації заведені в будинок
Заїзд між будинками буде викладено бруківкою
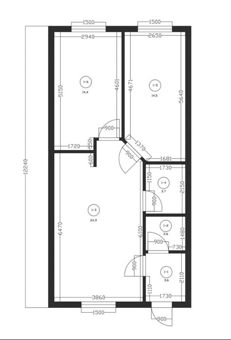
Планування: дві окремі спальні кімнати, простора кухня-вітальня, санвузол, прихожа і котельня-гардероб.
Збудовані з червоної цегли, в півтори цеглини, фасад утеплено пінопластом 10 см, дах - металочерепиця.
Будуть встановлені якісні металопластикові вікна і вхідні двері.
Ціна - 48000$ середній
! Котедж на стадії будівництва. Розтермінування до здачі в експлуатацію
Масив Макарова, 300 метрів від 3 поліклініки
Площа - 70 кв.м
Ділянка середнього - 1,6 сот
Кутового - 2,5 сот
Кутового - 7 сот
Комунікації: електрика 7кВт, септик 9 кубів і свердловина. Усі комунікації заведені в будинок
Заїзд між будинками буде викладено бруківкою
Планування: дві окремі спальні кімнати, простора кухня-вітальня, санвузол, прихожа і котельня-гардероб.
Збудовані з червоної цегли, в півтори цеглини, фасад утеплено пінопластом 10 см, дах - металочерепиця.
Будуть встановлені якісні металопластикові вікна і вхідні двері.
Ціна - 48000$ середній
! Котедж на стадії будівництва. Розтермінування до здачі в експлуатацію
ID: 915259088
Связаться с продавцом
xxx xxx xxx
Опубликовано 27 марта 2026 г.
Котедж за 3 поліклінікою. З комунікаціями
48 000 $
Местоположение
Ровно
Ровенская область