Бизнес
Продажа от застройщика
Без комиссии
Расстояние до ближайшего города: до 10 км.
Этажность: 1
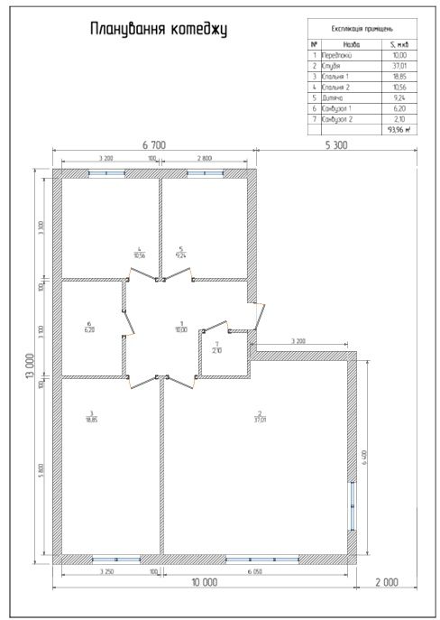
Общая площадь: 95 м²
Количество комнат: 3
Площадь участка: 3 соток
Тип дома: Коттедж
Год постройки / сдачи: На этапе строительства
Тип стен: Газоблок
Внешнее утепление стен: Пенополистирол
Тип кровли: Рубероидная кровля
Санузел: 2 и более
Отопление: Индивидуальное электро
Ремонт: После строителей
Меблирование: Нет
Коммуникации: Асфальтированная дорога, Вывоз отходов, Скважина, Электричество, Канализация септик
Ландшафт (до 1 км.): Лес
Описание
Котеджі 94кв.м від 49970$
Бориспільський район, с.Петропавлівське, вул.Щаслива
Всього 15 хв. від м.Бориспільська
1-поверхові котеджі з накриттям під авто. Власна земельна ділянка 3 сотки.
Продаж від забудовника, без комісії. Діють знижки при повній оплаті та розтермінування на 18 місяців без здорожчання.
Підведена електроенегія 7квт, 3 фази. водопостачання зі свердловини, каналізація індивідуальний септик, встановлені металопластикові вікна та броньовані вхідні двері. Огороджена територія.
Містечко закритого типу з охороною і відеонаглядом. Обслуговування території кооперативом.
Здача в експлуатацію вже на початку 2026 року.
Бориспільський район, с.Петропавлівське, вул.Щаслива
Всього 15 хв. від м.Бориспільська
1-поверхові котеджі з накриттям під авто. Власна земельна ділянка 3 сотки.
Продаж від забудовника, без комісії. Діють знижки при повній оплаті та розтермінування на 18 місяців без здорожчання.
Підведена електроенегія 7квт, 3 фази. водопостачання зі свердловини, каналізація індивідуальний септик, встановлені металопластикові вікна та броньовані вхідні двері. Огороджена територія.
Містечко закритого типу з охороною і відеонаглядом. Обслуговування території кооперативом.
Здача в експлуатацію вже на початку 2026 року.
ID: 904817172
Связаться с продавцом
xxx xxx xxx
Опубликовано 04 ноября 2025 г.
Котеджі 95 кв.м від 49970$
49 970 $
Местоположение
Петропавловское
Киевская область