Бизнес
Расстояние до ближайшего города: В городе
Расположение: Фасадное помещение
Тип объекта: Нежилое помещение в жилом фонде
Этаж: 1
Этажность: 3
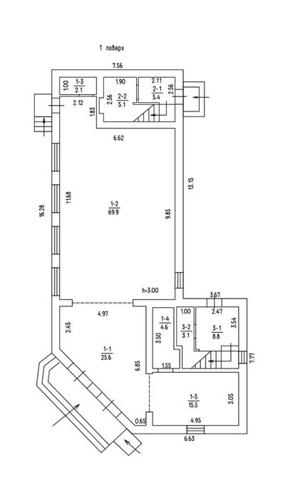
Общая площадь: 117 м²
Санузел: Да
Отопление: Индивидуальное электро
Ремонт: Нет
Коммуникации: Центральная канализация, Электричество, Центральный водопровод
Инфраструктура (до 500 метров): Отделение банка, банкомат, Аптека, Жилой массив, Офисы, бизнес центр, Отделение почты, Ресторан, кафе, бар, Супермаркет, ТРЦ, Транспортная развязка
Описание
Продається комерційне приміщення площею 117м2 на перехресті вул. Благовісна та вул. Кривалївська (Парижської Комуни).
Район саме цього перехрестя набирає розвитку. Поруч планується будівництво двох жк.
Комерційне приміщення знаходиться на 1 поверсі.
Два с/в та два входи, тобто є можливість за бажанням розподілу на два окремі об’єкти.
Висота стелі 3м.
Центральне водопостачання та каналізація.
Потужність електроенергії 20-25 квт.
Ціна 140000$.
Телефонуйте розповім всі деталі та переваги додатково.
Район саме цього перехрестя набирає розвитку. Поруч планується будівництво двох жк.
Комерційне приміщення знаходиться на 1 поверсі.
Два с/в та два входи, тобто є можливість за бажанням розподілу на два окремі об’єкти.
Висота стелі 3м.
Центральне водопостачання та каналізація.
Потужність електроенергії 20-25 квт.
Ціна 140000$.
Телефонуйте розповім всі деталі та переваги додатково.
ID: 888158588
Связаться с продавцом
xxx xxx xxx
