Бизнес
Без комиссии
Расстояние до ближайшего города: до 50 км.
Расположение: Другое
Тип объекта: Другое
Общая площадь: 650 м²
Описание
Фермерське господарство розташоване в с. Шеметове (колишнє Щорсове), Іванівський район, Одеська область, відстань до Одеси 53 км.
Господарство являє собою:
- три суміжні ділянки по 2 га (всього 6 га цілою ділянкою), приватна власність;
- будова 336 кв. м. (забійний цех колишньої птахофабрики) у власності поруч із ділянками, на будову - свідоцтво про право власності, на земельну ділянку під будовою договор оренди землі на 49 років;
- частина будівлі (пташник колишньої птахофабрики) площею 356 кв. м. на відстані 250 м. від ділянок.
Комунікації:
- газ високого тиску - 500 м. від ділянки;
- світло лінія 10 кВт. по межі ділянки. Через дорогу лінія 35 кВт. Поруч підстанція;
- вода: у безпосередній близькості 3 свердловини, що потребують відновлення, на відстані 700 м. є діюча свердловина з водонапірною баштою.
Поруч знаходяться села Бурдівка, Блонське, Білка, Богатове, Мале, Єлисаветінка - це велика кількість робочої сили поблизу господарства (можна знайти колишніх працівників птахофабрики)
Можливості розширення.
На відстані 1,5 км. пропонується ділянка 16 га, приватна власність, для ведення товарного сільського господарства.
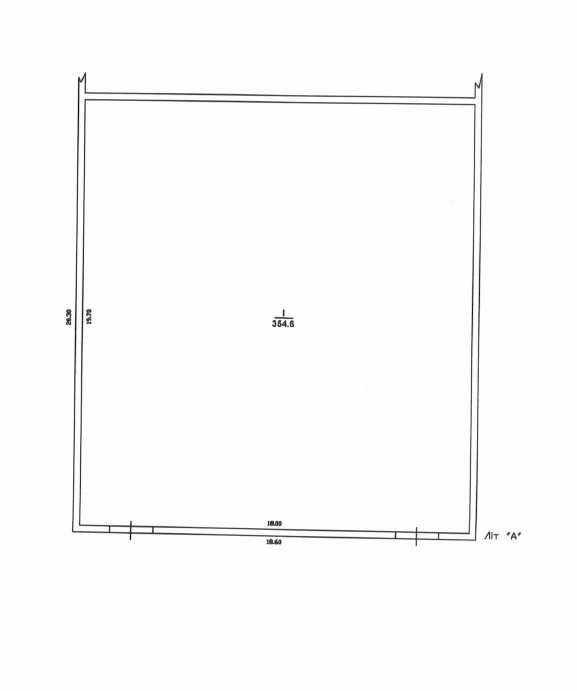
За необхідності можна вести переговори про придбання сусідніх ділянок. На малюнку видно конфігурацію ділянок.
356 кв. м. це частина однієї з будівель колишньої птахофабрики, загальна площа будівель 8000 м.кв. (4 будівлі по 2000 кв.м.). За необхідності також можна вести переговори з власниками інших частин.
У безпосередній близькості від господарства є 50 га. необроблюваної землі для випасу худоби за наявності такої необхідності.
КОМПАНІЯ S&Yu КОМПЛЕКСНО ЗАБЕЗПЕЧУЄ:
- підбір обʼєкту нерухомості з урахуванням виду використання, локації, комунікацій;
- зміну цільового призначення або використання земельних ділянок (будівель, споруд), поділ, обʼєднання;
- проведення проєктних робіт будь-якої складності;
- отримання дозвільних документів з будівництва;
- юридичний супровід на всіх етапах.
* Великий вибір земельних ділянок та об’єктів комерційної нерухомості під будь-який вид діяльності: с/г, промисловість, комерція, рекреація, котеджне житлове будівництво в будь-якій локації (Київська траса, обʼїздна дорога, Ізмаїльський, Ренійський та північний напрямок, Совіньон, м. Одеса, тощо). Додаткова інформація - на порталі S&Yu company (адреса сайту компанії дивіться в профілі).
Господарство являє собою:
- три суміжні ділянки по 2 га (всього 6 га цілою ділянкою), приватна власність;
- будова 336 кв. м. (забійний цех колишньої птахофабрики) у власності поруч із ділянками, на будову - свідоцтво про право власності, на земельну ділянку під будовою договор оренди землі на 49 років;
- частина будівлі (пташник колишньої птахофабрики) площею 356 кв. м. на відстані 250 м. від ділянок.
Комунікації:
- газ високого тиску - 500 м. від ділянки;
- світло лінія 10 кВт. по межі ділянки. Через дорогу лінія 35 кВт. Поруч підстанція;
- вода: у безпосередній близькості 3 свердловини, що потребують відновлення, на відстані 700 м. є діюча свердловина з водонапірною баштою.
Поруч знаходяться села Бурдівка, Блонське, Білка, Богатове, Мале, Єлисаветінка - це велика кількість робочої сили поблизу господарства (можна знайти колишніх працівників птахофабрики)
Можливості розширення.
На відстані 1,5 км. пропонується ділянка 16 га, приватна власність, для ведення товарного сільського господарства.
За необхідності можна вести переговори про придбання сусідніх ділянок. На малюнку видно конфігурацію ділянок.
356 кв. м. це частина однієї з будівель колишньої птахофабрики, загальна площа будівель 8000 м.кв. (4 будівлі по 2000 кв.м.). За необхідності також можна вести переговори з власниками інших частин.
У безпосередній близькості від господарства є 50 га. необроблюваної землі для випасу худоби за наявності такої необхідності.
КОМПАНІЯ S&Yu КОМПЛЕКСНО ЗАБЕЗПЕЧУЄ:
- підбір обʼєкту нерухомості з урахуванням виду використання, локації, комунікацій;
- зміну цільового призначення або використання земельних ділянок (будівель, споруд), поділ, обʼєднання;
- проведення проєктних робіт будь-якої складності;
- отримання дозвільних документів з будівництва;
- юридичний супровід на всіх етапах.
* Великий вибір земельних ділянок та об’єктів комерційної нерухомості під будь-який вид діяльності: с/г, промисловість, комерція, рекреація, котеджне житлове будівництво в будь-якій локації (Київська траса, обʼїздна дорога, Ізмаїльський, Ренійський та північний напрямок, Совіньон, м. Одеса, тощо). Додаткова інформація - на порталі S&Yu company (адреса сайту компанії дивіться в профілі).
ID: 863998322
Связаться с продавцом
xxx xxx xxx