Бизнес
Расстояние до ближайшего города: В городе
Расположение: Отдельное здание
Тип объекта: Другое
Общая площадь: 660 м²
Год постройки / сдачи: Не этапе строительства
Санузел: Да
Отопление: Индивидуальное газовое
Тип: Склад
Коммуникации: Асфальтированная дорога, Центральная канализация, Электричество, Вывоз отходов, Газ, Центральный водопровод, Скважина
Инфраструктура (до 500 метров): Отделение банка, банкомат, Автовокзал, Аптека, Шоссе, трасса, Больница, поликлиника, Рынок, Офисы, бизнес центр, Парк, зелёная зона, Отделение почты, Ресторан, кафе, бар, Супермаркет, ТРЦ, Транспортная развязка
Ландшафт (до 1 км.): Лес, Парк
Описание
Продам фасадне комерційне опалюване приміщення склад/магазин/виробництво з офісною частиною та укриттям. Знаходиться в селі Щасливе, фасад Бориспільської траси (2га лінія) по вулиці Озерній. 7-9 хвилин автомобілем від Позняків/Осокорків. Зручна транспортна розв’язка. Орієнтири: Керхер, OkWine, ресторан «Козачок». В пішій доступності АТБ, EVA, Фора, Hesburger, тощо.
Земельна ділянка площею 11,44 сотки у приватній власності. Кадастровий номер 3220888001:01:002:0108. Цільове призначення – «03.07 Для будівництва та обслуговування будівель торгівлі».
Загальні відомості:
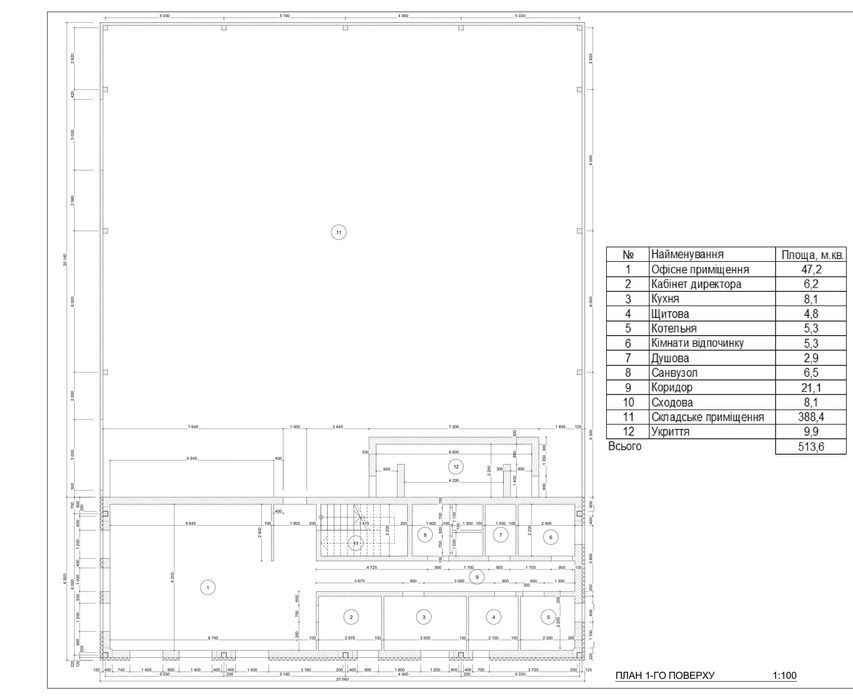
Площа («пляма») забудови – 530 м2;
Загальна площа приміщень – 660 м2;
Складська частина – 390 м2;
Укриття – 10 м2 (моноліт залізобетон, товщина стін і даху 300 мм);
Офісна частина 1й поверх – 130 м2;
Офісна частина 2й поверх – 130 м2;
Ролетні ворота 2 шт. розміром 3х3 м;
Висота колон металокаркасу до ферми – 6м;
Плита підлоги складської частини – товщина 200 мм, подвійна сітка армування 12ю арматурою, навантаження 8-9 т на м2;
Конструктив складської частини: металокаркас + стінові та дахові сендвіч-панелі товщиною 120 мм, наповнювач PIR;
Конструктив офісної частини: металокаркас + газоблок 300 мм + плити перекриття між 1м та 2м поверхом + утеплення даху 2го поверху мінеральною ватою 150/200 мм + стінові та дахові сендвіч-панелі товщиною 120 мм, наповнювач PIR;
Комунікації:
Електрика (мережа);
Сонячна електростанція;
Центральна каналізація та водопостачання;
Власна свердловина на воду (додатково);
Газ;
Генератор.
Наявна документація:
Право власності на земельну ділянку (Витяг з Державного реєстру речових прав + Витяг з Державного земельного кадастру);
«Містобудівні умови та обмеження» для «Будівництва магазину з допоміжними та офісними приміщеннями», видані Пристоличною сільською радою;
«Повідомлення про початок виконання будівельних робіт», зареєстроване Державною інспекцією архітектури та містобудування України;
Ескізний загальний проект будівлі;
Проект фундаментів (конструктив);
Проект металокаркасу (конструктив);
Проект офісної частини з розрахунком газоблоку та розкладкою плит перекриття;
Проект газового опалення складської та офісної частин;
Проект сонячної електростанції (110 кВт фотомодулів, інвертор високовольтний 80-100 кВт, акумулятори (ESS) ємністю 100-200 кВт*год);
Поточна стадія будівництва:
Влаштовані всі фундаменти (металокаркас + офісна частина) з закладними під електрику, воду, каналізацію (літо-осінь 2025);
Влаштоване монолітне залізобетонне укриття (літо-осінь 2025);
Підключено до центрального водогону (водопостачання+каналізація);
Виготовлений та змонтований якісний металокаркас виробництва «Дахцентр-Львів» (змонтований в жовтні 2025);
Влаштовані бетонні фундаменти (підпірні стінки) для майбутнього паркану (окрім фасадної частини).
P.S. Ціна вказана за об’єкт на поточній стадії будівництва.
Земельна ділянка площею 11,44 сотки у приватній власності. Кадастровий номер 3220888001:01:002:0108. Цільове призначення – «03.07 Для будівництва та обслуговування будівель торгівлі».
Загальні відомості:
Площа («пляма») забудови – 530 м2;
Загальна площа приміщень – 660 м2;
Складська частина – 390 м2;
Укриття – 10 м2 (моноліт залізобетон, товщина стін і даху 300 мм);
Офісна частина 1й поверх – 130 м2;
Офісна частина 2й поверх – 130 м2;
Ролетні ворота 2 шт. розміром 3х3 м;
Висота колон металокаркасу до ферми – 6м;
Плита підлоги складської частини – товщина 200 мм, подвійна сітка армування 12ю арматурою, навантаження 8-9 т на м2;
Конструктив складської частини: металокаркас + стінові та дахові сендвіч-панелі товщиною 120 мм, наповнювач PIR;
Конструктив офісної частини: металокаркас + газоблок 300 мм + плити перекриття між 1м та 2м поверхом + утеплення даху 2го поверху мінеральною ватою 150/200 мм + стінові та дахові сендвіч-панелі товщиною 120 мм, наповнювач PIR;
Комунікації:
Електрика (мережа);
Сонячна електростанція;
Центральна каналізація та водопостачання;
Власна свердловина на воду (додатково);
Газ;
Генератор.
Наявна документація:
Право власності на земельну ділянку (Витяг з Державного реєстру речових прав + Витяг з Державного земельного кадастру);
«Містобудівні умови та обмеження» для «Будівництва магазину з допоміжними та офісними приміщеннями», видані Пристоличною сільською радою;
«Повідомлення про початок виконання будівельних робіт», зареєстроване Державною інспекцією архітектури та містобудування України;
Ескізний загальний проект будівлі;
Проект фундаментів (конструктив);
Проект металокаркасу (конструктив);
Проект офісної частини з розрахунком газоблоку та розкладкою плит перекриття;
Проект газового опалення складської та офісної частин;
Проект сонячної електростанції (110 кВт фотомодулів, інвертор високовольтний 80-100 кВт, акумулятори (ESS) ємністю 100-200 кВт*год);
Поточна стадія будівництва:
Влаштовані всі фундаменти (металокаркас + офісна частина) з закладними під електрику, воду, каналізацію (літо-осінь 2025);
Влаштоване монолітне залізобетонне укриття (літо-осінь 2025);
Підключено до центрального водогону (водопостачання+каналізація);
Виготовлений та змонтований якісний металокаркас виробництва «Дахцентр-Львів» (змонтований в жовтні 2025);
Влаштовані бетонні фундаменти (підпірні стінки) для майбутнього паркану (окрім фасадної частини).
P.S. Ціна вказана за об’єкт на поточній стадії будівництва.
ID: 906890444
Связаться с продавцом
xxx xxx xxx
Опубликовано 22 февраля 2026 г.
Фасадне комерційне приміщення склад/магазин/виробництво 660 м2
320 000 $
Местоположение
Киев, Дарницкий
Киевская область