Бизнес
Продажа от застройщика
Без комиссии
Возможность обмена
Готов сотрудничать с риэлторами
Подходит под требования єОселя
Расстояние до ближайшего города: В городе
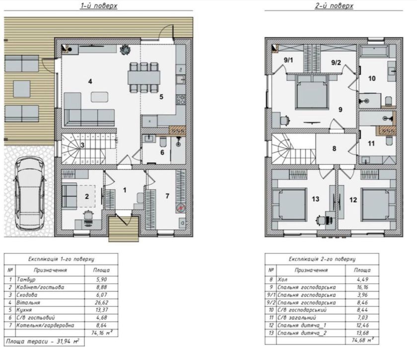
Этажность: 2
Общая площадь: 150 м²
Количество комнат: 4
Площадь участка: 4 соток
Тип дома: Коттедж
Год постройки / сдачи: После 2015
Внешнее утепление стен: Пенопласт
Санузел: 2 и более
Отопление: Централизованное
Ремонт: Под чистовую отделку
Меблирование: Нет
Коммуникации: Асфальтированная дорога, Газ, Центральная канализация, Центральный водопровод, Электричество
Описание
Сучасні будинки у клубному містечку Qvartet
Завершене будівництво! Виготовляються документи на право власності.
Ми відкриті до продажу під державні програми
Це не просто житло — це простір для життя у гармонії з комфортом і природою.
Кожен із 4 будинків має окрему ділянку 3–4 сотих, а ще 3 сотих виділено під спільну зону — для дитячих ігор, барбекю чи вечірніх посиденьок із сусідами.
Основні переваги:
- Продумане планування і три санвузли
- Цегляне будівництво + утеплення 10 см
- Підключені всі міські комунікації (вода, каналізація, світло, газ)
- Додаткова свердловина з насосом у кожному будинку
- Розведення електрики, води, каналізації
- Стіни поштукатурені, чистова стяжка підлоги
- Опалення від двоконтурного котла Baxi
- Закрита територія з автоматичними воротами та відеоспостереженням
- Територія впорядковується, облаштовується благоустрій
Умови продажу:
- При 100% оплаті — можливий торг
- Можливе розтермінування за фіксованою ціною
Деталі за телефоном
Завершене будівництво! Виготовляються документи на право власності.
Ми відкриті до продажу під державні програми
Це не просто житло — це простір для життя у гармонії з комфортом і природою.
Кожен із 4 будинків має окрему ділянку 3–4 сотих, а ще 3 сотих виділено під спільну зону — для дитячих ігор, барбекю чи вечірніх посиденьок із сусідами.
Основні переваги:
- Продумане планування і три санвузли
- Цегляне будівництво + утеплення 10 см
- Підключені всі міські комунікації (вода, каналізація, світло, газ)
- Додаткова свердловина з насосом у кожному будинку
- Розведення електрики, води, каналізації
- Стіни поштукатурені, чистова стяжка підлоги
- Опалення від двоконтурного котла Baxi
- Закрита територія з автоматичними воротами та відеоспостереженням
- Територія впорядковується, облаштовується благоустрій
Умови продажу:
- При 100% оплаті — можливий торг
- Можливе розтермінування за фіксованою ціною
Деталі за телефоном
ID: 902393418
Связаться с продавцом
xxx xxx xxx

