Бизнес
Вид объекта: Вторичка
Без комиссии
Тип дома: Жилой фонд от 2021 р.
Название ЖК: Синергія Сіті
Этаж: 10
Этажность: 10
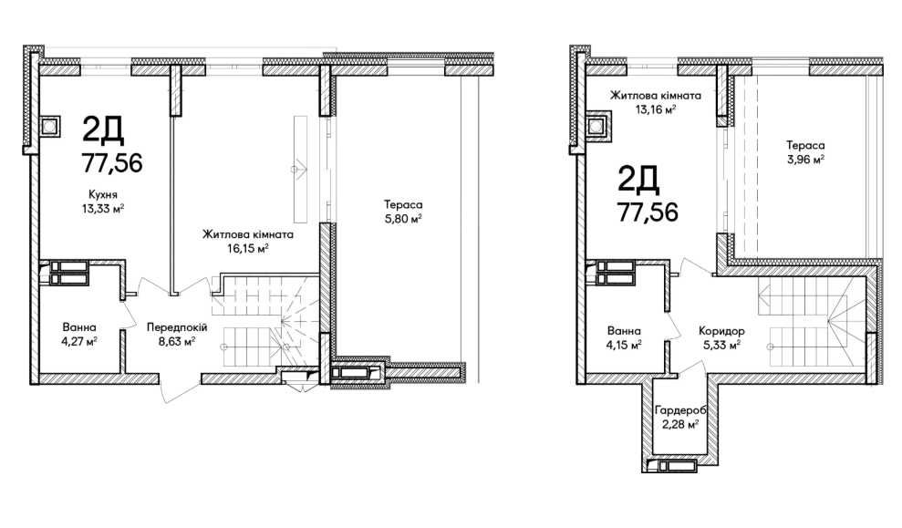
Общая площадь: 77.56 м²
Тип сделки: От застройщика
Площадь кухни: 13.33 м²
Количество комнат: 2 комнаты
Планировка: Многоуровневая
Ремонт: Под чистовую отделку
Комфорт: Видеонаблюдение, Балкон, лоджия, Лифт, Пожарная сигнализация, Гостевой паркинг, Парковочное место, Грузовой лифт, Автономный электрогенератор, Терраса
Коммуникации: Асфальтированная дорога, Центральная канализация, Электричество, Вывоз отходов, Газ, Центральный водопровод
Инфраструктура (до 500 метров): Отделение банка, банкомат, Автовокзал, Кинотеатр, театр, Аптека, Больница, поликлиника, Детский сад, Парк, зелёная зона, Детская площадка, Отделение почты, Ресторан, кафе, Школа, Магазин, киоск, Супермаркет, ТРЦ, Остановка транспорта
Инклюзивность: Лифт размером не менее 1,1х1,4 м., Голосовые уведомления в лифте, Наличие контрастных маркировок, Вход в уровень с улицей, Тактильные полосы на полу
Описание
Продається простора дворівнева квартира площею 77,56 м² з великою терасою у вже зданому 15-му будинку. Це ідеальний варіант для тих, хто цінує комфорт, стиль та затишок.
Переваги квартири:
2 рівні + простора тераса – ідеально для відпочинку, роботи чи сімейних вечорів.
Сучасний котел та якісна штукатурка – мінімум турбот для старту ремонту.
Є можливість замовити дизайнерський ремонт «під ключ» від забудовника – обговорюється індивідуально.
Будинок уже зданий і заселяється – жодних ризиків і очікувань.
Концепт комплексу - місто в місті - тут все є поруч.
На території будується школа
Вартість: 3 179 960 грн
Ціна за м²: 41 000 грн/м²
Це ваша можливість створити унікальний простір із власним стилем у сучасному комплексі з розвиненою інфраструктурою!
Деталі по телефону 3 8 0 9 5 5 3 2 9 3 5 2
Связаться с продавцом
xxx xxx xxx
