Бизнес
Вид объекта: Новостройка
Название ЖК: ЖК Галжитлобуд
Этаж: 8
Этажность: 9
Общая площадь: 73.79 м²
Площадь кухни: 17 м²
Количество комнат: 2 комнаты
Планировка: Раздельная
Санузел: 2 и более
Отопление: Индивидуальное газовое
Меблирование: Нет
Комфорт: Балкон, лоджия, Подземный паркинг
Описание
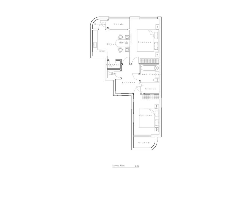
Продається сучасна квартира площею 74 м² у будинку комфорт-класу від надійного забудовника «Галжитлобуд».
Планування та переваги:
двостороннє розташування — сонце у квартирі цілий день;
два санвузли — комфорт для сім’ї та гостей;
дві зручні комори — порядок у домі без зайвих шаф;
балкон і дві лоджії з приємним краєвидом;
просторі кімнати та велика кухня;
власник за власні кошти встановлення вікна з кращою фурнітурою та енергоефективними склопакетами.
Будинок і умови:
монолітно-каркасна технологія будівництва;
підземний паркінг (можливість придбати місце для авто);
індивідуальне опалення (газовий котел + радіатори вже у квартирі);
стяжка та штукатурка стін — зручно для швидкого початку ремонту.
Локація:
Будинок розташований у районі з повноцінною інфраструктурою: поруч школи, садочки, магазини, громадський транспорт. Все необхідне — під рукою.
Ця квартира — ідеальний вибір для сімейного життя або інвестиції у якісну нерухомість.
Телефонуйте для детальної інформації!
код 382511
Код об'єкта: k107.7`382511`272. АН "Атланта".
Більше інформації та світлин за посиланням: https://www.atlanta.ua/uk/lvov/object/2komnatnye/382511
Планування та переваги:
двостороннє розташування — сонце у квартирі цілий день;
два санвузли — комфорт для сім’ї та гостей;
дві зручні комори — порядок у домі без зайвих шаф;
балкон і дві лоджії з приємним краєвидом;
просторі кімнати та велика кухня;
власник за власні кошти встановлення вікна з кращою фурнітурою та енергоефективними склопакетами.
Будинок і умови:
монолітно-каркасна технологія будівництва;
підземний паркінг (можливість придбати місце для авто);
індивідуальне опалення (газовий котел + радіатори вже у квартирі);
стяжка та штукатурка стін — зручно для швидкого початку ремонту.
Локація:
Будинок розташований у районі з повноцінною інфраструктурою: поруч школи, садочки, магазини, громадський транспорт. Все необхідне — під рукою.
Ця квартира — ідеальний вибір для сімейного життя або інвестиції у якісну нерухомість.
Телефонуйте для детальної інформації!
код 382511
Код об'єкта: k107.7`382511`272. АН "Атланта".
Більше інформації та світлин за посиланням: https://www.atlanta.ua/uk/lvov/object/2komnatnye/382511
ID: 905809623
Связаться с продавцом
xxx xxx xxx

