Бизнес
Без комиссии
Расстояние до ближайшего города: до 5 км.
Тип недвижимости: Земля жилой и общественной застройки
Кадастровый номер: 6125280700:01:001:0086
Площадь участка: 254 соток
Инфраструктура (до 500 метров): Школа, Кинотеатр, театр, Аптека, Магазин, киоск, Больница, поликлиника, Супермаркет, ТРЦ, Детский сад, Рынок, Остановка транспорта, Детская площадка, Отделение банка, банкомат, Отделение почты, Автовокзал, Ресторан, кафе
Описание
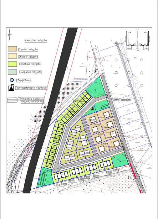
Пропонуємо до вашої уваги земельну ділянку в пригороді м. Тернопіль площею 2,54 га для будівництва і обслуговування
житлового будинку, господарських
будівель і споруд (присадибна діляка).
Розроблений детальний план забудови котеджного містечка на 60 котеджів.
Ділянка розташована 200 м від обʼїзної дороги. Поруч ТРЦ Подоляни , АТБ ,ОККО.
Розвинута інфраструктура та хороша розвʼязка.Поруч усі комунікації.
За більш детальною інформацією та оглядом телефонуйте!
житлового будинку, господарських
будівель і споруд (присадибна діляка).
Розроблений детальний план забудови котеджного містечка на 60 котеджів.
Ділянка розташована 200 м від обʼїзної дороги. Поруч ТРЦ Подоляни , АТБ ,ОККО.
Розвинута інфраструктура та хороша розвʼязка.Поруч усі комунікації.
За більш детальною інформацією та оглядом телефонуйте!
ID: 866668149
Связаться с продавцом
xxx xxx xxx

