Бизнес
Продажа от застройщика
Без комиссии
Расстояние до ближайшего города: до 15 км.
Этажность: 1
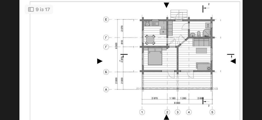
Общая площадь: 64 м²
Количество комнат: 2
Площадь участка: 14 соток
Тип дома: Дом
Год постройки / сдачи: После 2015
Тип стен: Деревянный
Внешнее утепление стен: Минеральная вата
Тип кровли: Металлочерепица
Санузел: Смежный
Отопление: Твердотопливное
Ремонт: Авторский проект
Меблирование: Да
Бытовая техника: Холодильник, Варочная панель, Плита, Стиральная машина
Мультимедиа: Wi-Fi
Комфорт: Беседка, мангал, Забор, ограждение, Камин, Сауна, баня
Коммуникации: Электричество, Канализация септик
Инфраструктура (до 500 метров): Ресторан, кафе
Ландшафт (до 1 км.): Лес, Озеро, Горы
Описание
Пропонується новий будинок з брусу, розташований у винятково мальовничому місці з панорамним видом на Карпати. Загальна площа — 64 м² і 14 соток землі. Будинок зведений у вересні 2024 року та вже повністю перевірений в експлуатації й додатково утеплений для комфортного проживання в будь-яку пору року.
Відео youtu.be/ECZdXkDDKq4
Стіни виконані з масивного брусу товщиною 18 см та додатково герметизовані з обох сторін, що забезпечує відмінне збереження тепла і природний мікроклімат усередині. Деревина пофарбована німецькою фарбою на натуральній основі, яка створює приємний природний аромат у приміщенні.
У будинку підключено електропостачання потужністю 15 кВт, проведено високошвидкісний інтернет. Вода — власна, з гірського джерела, додатково встановлена сучасна система фільтрації з п’яти ступенів очищення. У ванній кімнаті облаштована тепла підлога для додаткового комфорту.
Для опалення встановлена потужна піч, розрахована на площу до 100 м². Додатково в кожній кімнаті передбачені електрообігрівачі, що дозволяє легко підтримувати комфортну температуру в будь-яку пору року.
Будинок збудований на палях(сваі), що ідеально підходить для гірського рельєфу та забезпечує довговічність конструкції. Поруч протікає гірський струмок. Територія повністю огороджена металевою сіткою, облаштований заїзд для двох автомобілів.
Окремо варто підкреслити, що будинок і все наповнення всередині — повністю нові. Встановлено великий холодильник, житло готове до проживання без жодних додаткових витрат.
На балконі облаштована затишна зона відпочинку: стіл зі скам’єю для обідів на свіжому повітрі та кокон-гойдалка на двох осіб, де особливо приємно проводити час, милуючись краєвидами.
Локація унікальна — будинок знаходиться в межах заповідної зони. З тераси відкриваються краєвиди, а сходи та заходи сонця тут мають по-справжньому особливу атмосферу, яку неможливо передати словами — це потрібно побачити на власні очі.
За потреби є надійні місцеві люди, які можуть повністю займатись обслуговуванням будинку та роботою з туристами: заселенням, виселенням, прибиранням і контролем порядку. Це дозволяє використовувати будинок як готовий об’єкт для орендного бізнесу без постійної особистої присутності.
Поруч проживають доброзичливі та надійні сусіди, які завжди готові допомогти при потребі, що створює додаткове відчуття спокою та безпеки.
Відео youtu.be/ECZdXkDDKq4
Стіни виконані з масивного брусу товщиною 18 см та додатково герметизовані з обох сторін, що забезпечує відмінне збереження тепла і природний мікроклімат усередині. Деревина пофарбована німецькою фарбою на натуральній основі, яка створює приємний природний аромат у приміщенні.
У будинку підключено електропостачання потужністю 15 кВт, проведено високошвидкісний інтернет. Вода — власна, з гірського джерела, додатково встановлена сучасна система фільтрації з п’яти ступенів очищення. У ванній кімнаті облаштована тепла підлога для додаткового комфорту.
Для опалення встановлена потужна піч, розрахована на площу до 100 м². Додатково в кожній кімнаті передбачені електрообігрівачі, що дозволяє легко підтримувати комфортну температуру в будь-яку пору року.
Будинок збудований на палях(сваі), що ідеально підходить для гірського рельєфу та забезпечує довговічність конструкції. Поруч протікає гірський струмок. Територія повністю огороджена металевою сіткою, облаштований заїзд для двох автомобілів.
Окремо варто підкреслити, що будинок і все наповнення всередині — повністю нові. Встановлено великий холодильник, житло готове до проживання без жодних додаткових витрат.
На балконі облаштована затишна зона відпочинку: стіл зі скам’єю для обідів на свіжому повітрі та кокон-гойдалка на двох осіб, де особливо приємно проводити час, милуючись краєвидами.
Локація унікальна — будинок знаходиться в межах заповідної зони. З тераси відкриваються краєвиди, а сходи та заходи сонця тут мають по-справжньому особливу атмосферу, яку неможливо передати словами — це потрібно побачити на власні очі.
За потреби є надійні місцеві люди, які можуть повністю займатись обслуговуванням будинку та роботою з туристами: заселенням, виселенням, прибиранням і контролем порядку. Це дозволяє використовувати будинок як готовий об’єкт для орендного бізнесу без постійної особистої присутності.
Поруч проживають доброзичливі та надійні сусіди, які завжди готові допомогти при потребі, що створює додаткове відчуття спокою та безпеки.
ID: 913057413
Связаться с продавцом
xxx xxx xxx
Опубликовано 30 января 2026 г.
Будинок із Брусу 64 кв. с.Буковець (ів фр) + 14 сот.Краєвид.Заповідник
75 000 $
Местоположение
Черетов
Ивано-Франковская область