Перейти к основному разделу
Чат
  • Укр
  • Рус

Уведомления

Подать объявление
Будинок від власника
Будинок від власника
Будинок від власника
Будинок від власника
РекламироватьПоднять

Частное лицо

Продажа от застройщика

Расстояние до ближайшего города: до 15 км.

Этажность: 1

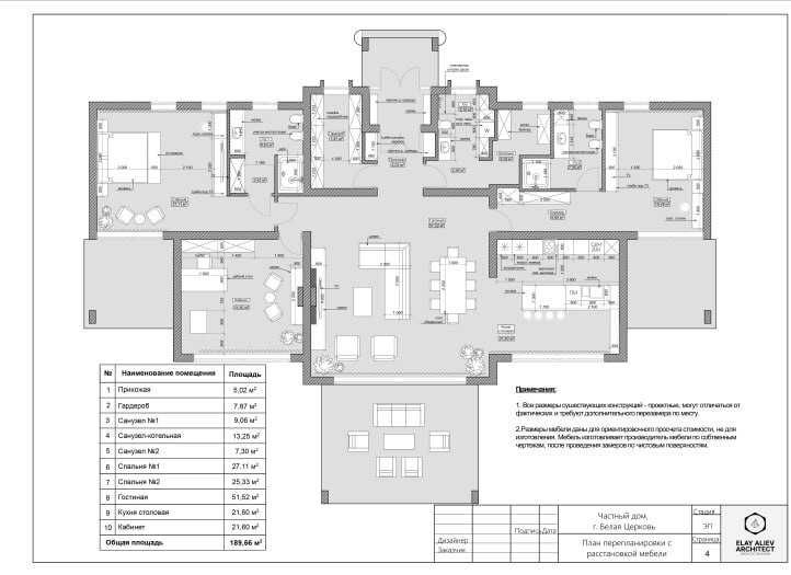
Общая площадь: 184 м²

Количество комнат: 4

Площадь участка: 35 соток

Тип дома: Дом

Меблирование: Нет

Мультимедиа: Скоростной интернет, Wi-Fi

Комфорт: Видеонаблюдение, Гараж, Подогрев пола, Гостевой, летний дом, Охраняемая территория

Описание

Продаж будинку, с.Матюші. Будинок підготовлений до вашого дизайнерського ремонту. Зроблено розводка електрики, опалення, каналізація, інтернет та пультова охорона. Загальна площа 184м2: 2-ві спальні, кабінет з каміном, кухня студія з каміном, 3-ри санвузли, 3-ри літні тераси. Інфініті басейн з прекрасним видом на річку. Висота стелі: спальні 3-м вітальня кухня 4-м .Економне газове опалення. Тепла підлога по всьому будинку. Термоізолюючі вікна з алюмінієвим профілем. Монолітний каркас, утеплений мінватою. Підведено газ, світло, вода з свердловини.Земельна ділянка 35соток під будівництво з виходом до берега річки. Гараж на дві машини, будинок для гостей, господарські споруди для обслуговування басейну та інших потреб, погріб.
По периметру землі монолітна заливка для паркану.
ID: 899859249

Связаться с продавцом

dom.sva

на OLX с сентябрь 2025 г.

Онлайн 16 октября 2025 г.

xxx xxx xxx

Опубликовано 16 октября 2025 г.

Будинок від власника

200 000 $

Договорная

Местоположение

Location

Матюши

Киевская область

Бесплатное приложение для твоего телефона