Бизнес
Продажа от застройщика
Без комиссии
Готов сотрудничать с риэлторами
Расстояние до ближайшего города: до 10 км.
Этажность: 2
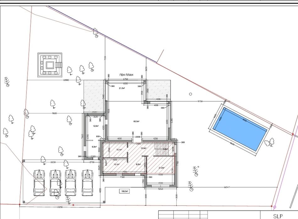
Общая площадь: 290 м²
Количество комнат: 6
Площадь участка: 10 соток
Тип дома: Дом
Тип стен: Кирпичный
Тип кровли: Другое
Санузел: 2 и более
Отопление: Собственная котельная
Ремонт: Под чистовую отделку
Мультимедиа: Скоростной интернет
Комфорт: Видеонаблюдение, Подсобные помещения, Терраса, Автонавес, Автоматические ворота, Балкон, Цоколь, подвал, Забор, ограждение, Подогрев пола, Охраняемая территория, Баcсейн
Коммуникации: Асфальтированная дорога, Электричество, Вывоз отходов, Канализация септик, Скважина
Инфраструктура (до 500 метров): Супермаркет, ТРЦ, Остановка транспорта, Ресторан, кафе, Школа, Магазин, киоск, Отделение банка, банкомат, Кинотеатр, театр, Аптека, Больница, поликлиника, Детский сад, Парк, зелёная зона, Детская площадка, Отделение почты
Ландшафт (до 1 км.): Лес, Холмы, Озеро
Описание
Будинок знаходиться у котеджному містечку з охороною у соснах з гарною панорамою.
В процесі будівництва. Ціна в готовому варіанті.
Сучасний будинок у соснах з цегли 38 см під чистове оздоблення. Будинок 290 м2 + навіс на 4 авто + цоколь (сховище) 55м2 + 3 тераси.Перекриття дах моноліт. Вікна алюмінієві. Земельні ділянка 10 соток у соснах з гарною панорамою.
Ціна 750 тис. уо. Від власника. Без комісії. Оперативно можемо показати!) Дуже гарна атмосфера: відкривається панорама і на ділянці сосни.
Конструктив: - фундамент з гідроізоляцією та утепленням; - міжповерхове перекриття – монолітне; - покрівля – монолітна; - алюмінієві вікна та віконна фурнітура. Монолітні сходи. Дах плоский моноліт.
Стіна цегла 38 см . Утеплювач 15 см.
Планування: Цокольний поверх: кімната 55 м2 .
1 поверх: передпокій з вхідною гардеробною 18 м2, вітальня кухня 81 м2 з виходом на 2 тераси, сан вузол, окрема кімната, котельня, пральня, кухона кладова.
2 поверх - 3 окремі кімнати, гардеробна, 2 сан вузли, тераса. Головна мастер спальня зі своїм сан вузлом і гардеробною.
Всі комунікації заведені : каналізація септик 12 кубів, електрика 3 фази; вода свердловина.
Земельна ділянка 10 соток під забудову, огороджена парканом, ворота, калитка. На ділянці зроблена тротуарна плитка, газон автополив, озеленення.
Добре розвинена інфраструктура. Гарна транспортна розв'язка.
На телефоні 09*********15 є всі месенжери.
Маємо великий вибір будинків. Телефонуйте, будемо раді допомогти.
Связаться с продавцом
xxx xxx xxx

