Бизнес
Продажа от застройщика
Без комиссии
Расстояние до ближайшего города: В городе
Этажность: 2
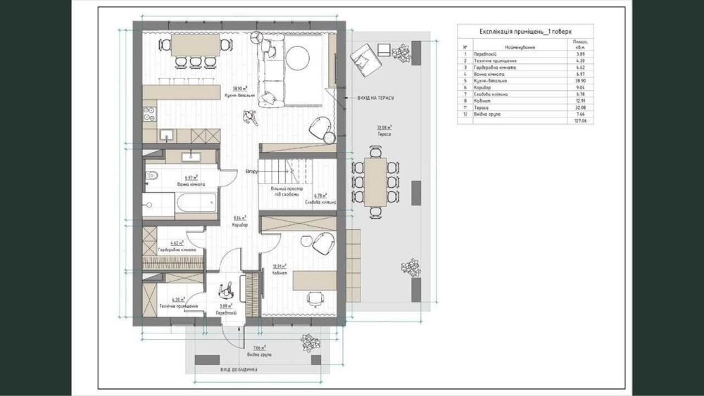
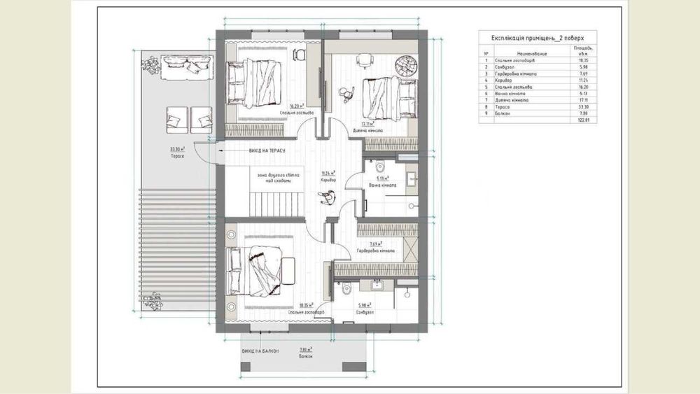
Общая площадь: 180 м²
Количество комнат: 4
Площадь участка: 4.40 соток
Тип дома: Дом
Год постройки / сдачи: После 2015
Тип стен: Кирпичный
Внешнее утепление стен: Пенопласт
Тип кровли: Металлочерепица
Санузел: 2 и более
Отопление: Индивидуальное газовое
Ремонт: Под чистовую отделку
Мультимедиа: Скоростной интернет
Комфорт: Забор, ограждение, Терраса, Балкон, Автоматические ворота
Коммуникации: Асфальтированная дорога, Газ, Вывоз отходов, Скважина, Электричество, Канализация септик
Инфраструктура (до 500 метров): Метро, Остановка транспорта
Описание
Пропонується сучасний заміський будинок у м. Київ, у тихій локації поруч із лісом та всього за 5 хвилин їзди від метро Житомирська
Закрита територія забезпечує приватність і безпеку, а продумане планування та якісні матеріали — комфорт для життя
Площа будинку — 180 кв.м, додатково дві тераси по 40 кв.м та балкон
Ділянка — 4,4 сотки, з бруківкою та газоном, є можливість облаштування басейну
Будинок збудований з повнотілої червоної цегли (400 мм), утеплений мінеральною ватою 100 мм. Перегородки також цегляні. Дах — 4-скатний з бітумної черепиці, утеплення перекриття — 200 мм мінеральної вати.
Фасад: перший поверх — клінкерна плитка, другий — термодошка (вільха)
Внутрішній стан — під чистове оздоблення: гіпсова штукатурка стін, суха стяжка на обох поверхах, тепла підлога на першому та другому рівні
Вікна REHAU 86 мм, 3-камерні, з фурнітурою REHAU
Комунікації:
електроенергія 3 фази, 16 кВт
розведена електрика за проєктом забудовника
вода розведена трубами REHAU
свердловина 70 м
каналізація — септик
котел Vaillant
підведення під інтернет
Ідеальний варіант для тих, хто шукає якісний, енергоефективний будинок у зеленій зоні столиці з швидким доступом до метро.
Телефонуйте, домовимося про перегляд в зручний для Вас час!
Закрита територія забезпечує приватність і безпеку, а продумане планування та якісні матеріали — комфорт для життя
Площа будинку — 180 кв.м, додатково дві тераси по 40 кв.м та балкон
Ділянка — 4,4 сотки, з бруківкою та газоном, є можливість облаштування басейну
Будинок збудований з повнотілої червоної цегли (400 мм), утеплений мінеральною ватою 100 мм. Перегородки також цегляні. Дах — 4-скатний з бітумної черепиці, утеплення перекриття — 200 мм мінеральної вати.
Фасад: перший поверх — клінкерна плитка, другий — термодошка (вільха)
Внутрішній стан — під чистове оздоблення: гіпсова штукатурка стін, суха стяжка на обох поверхах, тепла підлога на першому та другому рівні
Вікна REHAU 86 мм, 3-камерні, з фурнітурою REHAU
Комунікації:
електроенергія 3 фази, 16 кВт
розведена електрика за проєктом забудовника
вода розведена трубами REHAU
свердловина 70 м
каналізація — септик
котел Vaillant
підведення під інтернет
Ідеальний варіант для тих, хто шукає якісний, енергоефективний будинок у зеленій зоні столиці з швидким доступом до метро.
Телефонуйте, домовимося про перегляд в зручний для Вас час!
ID: 911333337
Связаться с продавцом
xxx xxx xxx
Опубликовано 09 января 2026 г.
Будинок 180м2 Київ/Під чистове оздоблення. БЕЗ КОМІСІЇ
320 000 $
Местоположение
Киев, Святошинский
Киевская область