Бизнес
Продажа от застройщика
Без комиссии
Расстояние до ближайшего города: до 10 км.
Этажность: 2
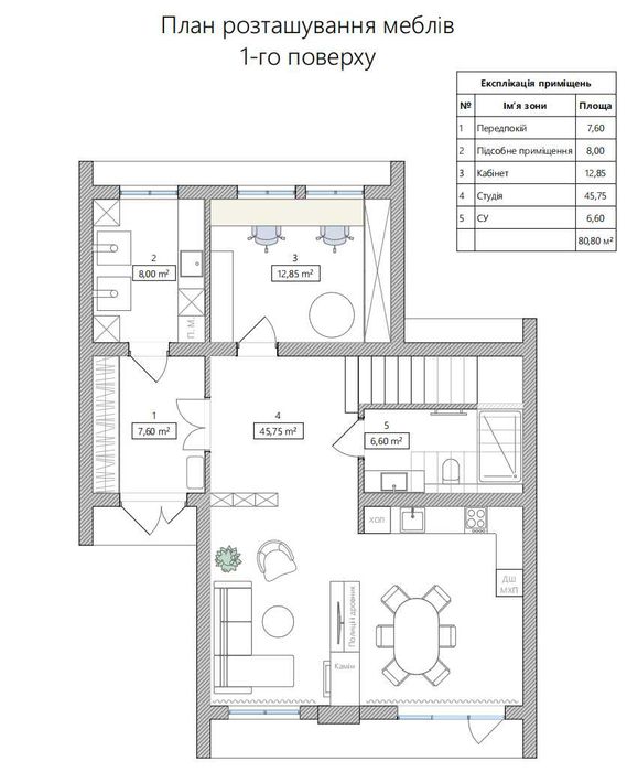
Общая площадь: 160 м²
Количество комнат: 4
Площадь участка: 6 соток
Тип дома: Дом
Год постройки / сдачи: На этапе строительства
Тип стен: Кирпичный
Внешнее утепление стен: Базальт
Тип кровли: Битумная черепица
Санузел: 2 и более
Отопление: Другое
Ремонт: После строителей
Меблирование: Нет
Комфорт: Видеонаблюдение, Забор, ограждение, Сад, огород, Охраняемая территория
Коммуникации: Асфальтированная дорога, Электричество, Вывоз отходов, Газ, Канализация септик, Скважина
Инфраструктура (до 500 метров): Парк, зелёная зона, Детская площадка
Ландшафт (до 1 км.): Река
Описание
Двоповерховий котедж 160 м² у новому котеджному містечку O!villas, який розташований на березі каналу Старої Десни в селі Зазим'я Броварського району.
Котеджне містечко O!villas газифіковано, матиме закриту територію з охороною.
Містечко має власну набережну довжиною 400 метрів із:
- зоною басейну та терасою на воді
- кафе і рестораном
- міні-поле для футболу
- дитячі та спортивні майданчики
- променадом
Котедж 160 м² - у першій черзі будівництва. Буде готовий вже влітку 2026 року.
Комплектація:
Фундамент
стрічковий фундамент із збірних бетонних блоків на монолітній залізобетонній подушці
Стіни зовнішні
керамоблок 380 мм
утеплення базальтовою ватою 100 мм
Фасад
мокрий фасад з декоруванням фасаду елементами дерев’яного планкену або клінкерною цеглою або декоративним каменем
підсвітка фасаду
Дах
бітумна черепиця з системою водовідведення, утеплення мінеральною ватою
Перекриття
збірне із залізобетонних плит (у двоповерхових будинків)
Водопостачання
централізоване зі свердловини глибиною до 80 м
Газопостачання
газ підведено до будинку (за умови оплати підряднику компенсації за підключення)
Каналізація
індивідуальна система автономної каналізації
Підлога
Бетонування
Двері вхідні
вуличні двері з тепло- та шумоізоляцією
Вікна
металопластикові вікна з п'ятикамерного профілю та двокамерним склопакетом (Rehau)
Сходи
бетонні
Електромережа
підвід електромережі до будинку 12,5 кВт (з можливістю збільшення),
25-ти амперний трьохфазний автомат
Лічильник
електроенергії
Водопостачання та каналізація
підвід в будинок на перший поверх (без розведення)
Вентиляційні канали та димохід
закладні для вентиляційних каналів, димохід з вмонтованою трубою
Тераса
бетонування зони тераси біля будинку згідно ескізного проєкту будинку
Територія
огорожа території ділянки будинку металевим парканом висотою до 1,80 м
з центрального входу в будинок виконується благоустрій згідно ескізного проєкту будинку та оснащення системою поливу
Доступне розтермінування на 48 місяців та спеціальні умови для військовослужбовців.
Котеджне містечко O!villas газифіковано, матиме закриту територію з охороною.
Містечко має власну набережну довжиною 400 метрів із:
- зоною басейну та терасою на воді
- кафе і рестораном
- міні-поле для футболу
- дитячі та спортивні майданчики
- променадом
Котедж 160 м² - у першій черзі будівництва. Буде готовий вже влітку 2026 року.
Комплектація:
Фундамент
стрічковий фундамент із збірних бетонних блоків на монолітній залізобетонній подушці
Стіни зовнішні
керамоблок 380 мм
утеплення базальтовою ватою 100 мм
Фасад
мокрий фасад з декоруванням фасаду елементами дерев’яного планкену або клінкерною цеглою або декоративним каменем
підсвітка фасаду
Дах
бітумна черепиця з системою водовідведення, утеплення мінеральною ватою
Перекриття
збірне із залізобетонних плит (у двоповерхових будинків)
Водопостачання
централізоване зі свердловини глибиною до 80 м
Газопостачання
газ підведено до будинку (за умови оплати підряднику компенсації за підключення)
Каналізація
індивідуальна система автономної каналізації
Підлога
Бетонування
Двері вхідні
вуличні двері з тепло- та шумоізоляцією
Вікна
металопластикові вікна з п'ятикамерного профілю та двокамерним склопакетом (Rehau)
Сходи
бетонні
Електромережа
підвід електромережі до будинку 12,5 кВт (з можливістю збільшення),
25-ти амперний трьохфазний автомат
Лічильник
електроенергії
Водопостачання та каналізація
підвід в будинок на перший поверх (без розведення)
Вентиляційні канали та димохід
закладні для вентиляційних каналів, димохід з вмонтованою трубою
Тераса
бетонування зони тераси біля будинку згідно ескізного проєкту будинку
Територія
огорожа території ділянки будинку металевим парканом висотою до 1,80 м
з центрального входу в будинок виконується благоустрій згідно ескізного проєкту будинку та оснащення системою поливу
Доступне розтермінування на 48 місяців та спеціальні умови для військовослужбовців.
ID: 882719464
Связаться с продавцом
xxx xxx xxx
