Бизнес
Продажа от застройщика
Без комиссии
Расстояние до ближайшего города: В городе
Этажность: 2
Общая площадь: 130 м²
Количество комнат: 4
Площадь участка: 2.50 соток
Тип дома: Дуплекс
Год постройки / сдачи: После 2015
Тип стен: Кирпичный
Внешнее утепление стен: Пенополистирол
Тип кровли: Металлочерепица
Санузел: 2 и более
Отопление: Индивидуальное газовое
Ремонт: Под чистовую отделку
Меблирование: Нет
Комфорт: Автонавес, Забор, ограждение, Терраса
Коммуникации: Асфальтированная дорога, Электричество, Газ, Канализация септик, Центральный водопровод
Инфраструктура (до 500 метров): Детский сад, Парк, зелёная зона, Детская площадка, Ресторан, кафе, Школа
Ландшафт (до 1 км.): Лес, Парк
Описание
Продаж дуплексу у Бучі, р-н ресторану Отаманша
Загальна площа: 130,7 м² + мансарда 40 м²
Ділянка: 2,5 сотки
Зручна локація 17 км від Києва, закрита територія зі шлагбаумом, асфальтований під’їзд, 12 паркомісць.
Поруч магазини, школи, садки, аптеки, ТРЦ та сосни.
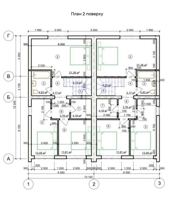
Планування:
4 спальні (1 на 1-му та 3 на 2-му поверсі),
кухня- вітальня з виходом на власну криту терасу
2 санвузли
Характеристика будівництва:
Стіни — газобетон D400 (300 мм), + утеплення фасаду
Фундамент — стрічковий з армованою плитою
Перекриття — залізобетонне
Дах металочерепиця + утеплений базальтовою ватою 200 мм
Вікна Rehau
Висота стель: 1 поверх — 3 м, 2 поверх — 2,75 м
Комунікації:
Індивідуальне газове опалення
Централізоване водопостачання
Електрика 7кВат з можливістю збільшення
Каналізація — переливна система (не потребує відкачування)
Зроблені внутрішні роботи:
гіпсова штукатурка,
чистова стяжка,
розведена електрика по будинку
розведена вода й каналізація
тепла підлога першого поверху та санвузли другого. Також встановлені радіатори.
Записуйтесь на перегляд у зручний для Вас час!
Загальна площа: 130,7 м² + мансарда 40 м²
Ділянка: 2,5 сотки
Зручна локація 17 км від Києва, закрита територія зі шлагбаумом, асфальтований під’їзд, 12 паркомісць.
Поруч магазини, школи, садки, аптеки, ТРЦ та сосни.
Планування:
4 спальні (1 на 1-му та 3 на 2-му поверсі),
кухня- вітальня з виходом на власну криту терасу
2 санвузли
Характеристика будівництва:
Стіни — газобетон D400 (300 мм), + утеплення фасаду
Фундамент — стрічковий з армованою плитою
Перекриття — залізобетонне
Дах металочерепиця + утеплений базальтовою ватою 200 мм
Вікна Rehau
Висота стель: 1 поверх — 3 м, 2 поверх — 2,75 м
Комунікації:
Індивідуальне газове опалення
Централізоване водопостачання
Електрика 7кВат з можливістю збільшення
Каналізація — переливна система (не потребує відкачування)
Зроблені внутрішні роботи:
гіпсова штукатурка,
чистова стяжка,
розведена електрика по будинку
розведена вода й каналізація
тепла підлога першого поверху та санвузли другого. Також встановлені радіатори.
Записуйтесь на перегляд у зручний для Вас час!
ID: 899772833
Связаться с продавцом
xxx xxx xxx

