Бизнес
Продажа от застройщика
Без комиссии
Расстояние до ближайшего города: В городе
Этажность: 2
Общая площадь: 92.50 м²
Количество комнат: 3
Площадь участка: 2.16 соток
Тип дома: Дуплекс
Тип стен: Газоблок
Внешнее утепление стен: Минеральная вата
Тип кровли: Металлочерепица
Санузел: 2 и более
Коммуникации: Асфальтированная дорога, Электричество, Канализация септик, Скважина
Описание
Бучанський район селище Білогородка, продаж дуплексу. Загальною площею 92,5 м.кв. Земельна ділянка від 2,16 соток. На кожен будинок заведено 10 кВт електрики. Свердловина. Септик.
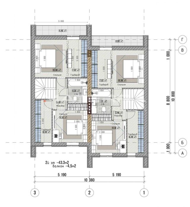
Перший поверх кухня-вітальня площею 15,5 м.кв
Гостьова кімната чи кабінет -10 м.кв., гардероб, санвузол. Другий поверх дві спальні 11 та 12 м.кв. Гардероб, сан/вузол, коридор, балкон.
Конструкція будинків
Фундамент
• Стрічковий фундамент на основі монолітного залізобетону. • Розрахунок конструкцій на основі виконаних геологічних та геодезичних досліджень.
Каркас будинку
• Несучі стіни з газоблока товщиною 300 мм.
Підлога першого поверху
• Монолітна залізобетонна плита
Міжповерхове перекриття
• Збірна залізобетонна плита.
Зовнішні стіни
• Газоблок товщиною 300 мм.
• Утеплювач ПСБ-С-35 - 100мм.
• Декоративна штукатурка по сетці.
• Високоякісне пофарбування.
Зовнішні і балконні двері
• Панорамне скління.
• Пластиковий профіль з оздобленням у колір антрациту.
• Двокамерний склопакет.
Вікна
• EPSILON OPTIMA | Renolit Антрацит .
• 6 кам. 70мм / Рама 6 кам 63мм. / Створка 6 кам
Покрівля
• Металочерепиця.
• Мінераловатний утеплювач 200мм (за погодженням).
• Пароізоляція.
Декоративні елементи фасада
• Декоративна штукатурка. • Огородження із чорного металу.
Комунікаційні системи
Водопостачання і каналізація
• Введення в будинок води. • Введення в будинок каналізації.
Електропостачання
• Введення в будинок з пристроєм розподільного щита та вузла обліку електроенергії.
Характеристики ділянки
Каналізація
• Автономна господарсько-побутова система каналізації на 6м3.
Водопостачання
• Індивідуальна свердловини 60м.
Благоустрій
• Єдиний ландшафтний дизайн. • Газони на території ділянки. • Загорожі між будинками.
Додаткові переваги
• Повністю закритий комплекс • Можливість встановлення із сусідами власного поста охорони. • Можливість встановлення систем відеоспостереження з постійним записом зображення. • Можливість встановлення охоронно-пожежної сигналізації з виведенням сигналу на пост охорони та мобільний телефон власника.
Фото будуть оновлюватися, щодня ведуться ремонтні роботи.
Будинки розташовані в центрі села, поряд вся інфраструктура- зупинка маршрутного транспорту, школа, дитячий садок, стадіон, магазини, декілька супермаркетів, ринок, кафе, спорт зал та ін.
Перший поверх кухня-вітальня площею 15,5 м.кв
Гостьова кімната чи кабінет -10 м.кв., гардероб, санвузол. Другий поверх дві спальні 11 та 12 м.кв. Гардероб, сан/вузол, коридор, балкон.
Конструкція будинків
Фундамент
• Стрічковий фундамент на основі монолітного залізобетону. • Розрахунок конструкцій на основі виконаних геологічних та геодезичних досліджень.
Каркас будинку
• Несучі стіни з газоблока товщиною 300 мм.
Підлога першого поверху
• Монолітна залізобетонна плита
Міжповерхове перекриття
• Збірна залізобетонна плита.
Зовнішні стіни
• Газоблок товщиною 300 мм.
• Утеплювач ПСБ-С-35 - 100мм.
• Декоративна штукатурка по сетці.
• Високоякісне пофарбування.
Зовнішні і балконні двері
• Панорамне скління.
• Пластиковий профіль з оздобленням у колір антрациту.
• Двокамерний склопакет.
Вікна
• EPSILON OPTIMA | Renolit Антрацит .
• 6 кам. 70мм / Рама 6 кам 63мм. / Створка 6 кам
Покрівля
• Металочерепиця.
• Мінераловатний утеплювач 200мм (за погодженням).
• Пароізоляція.
Декоративні елементи фасада
• Декоративна штукатурка. • Огородження із чорного металу.
Комунікаційні системи
Водопостачання і каналізація
• Введення в будинок води. • Введення в будинок каналізації.
Електропостачання
• Введення в будинок з пристроєм розподільного щита та вузла обліку електроенергії.
Характеристики ділянки
Каналізація
• Автономна господарсько-побутова система каналізації на 6м3.
Водопостачання
• Індивідуальна свердловини 60м.
Благоустрій
• Єдиний ландшафтний дизайн. • Газони на території ділянки. • Загорожі між будинками.
Додаткові переваги
• Повністю закритий комплекс • Можливість встановлення із сусідами власного поста охорони. • Можливість встановлення систем відеоспостереження з постійним записом зображення. • Можливість встановлення охоронно-пожежної сигналізації з виведенням сигналу на пост охорони та мобільний телефон власника.
Фото будуть оновлюватися, щодня ведуться ремонтні роботи.
Будинки розташовані в центрі села, поряд вся інфраструктура- зупинка маршрутного транспорту, школа, дитячий садок, стадіон, магазини, декілька супермаркетів, ринок, кафе, спорт зал та ін.
ID: 858327666
Связаться с продавцом
xxx xxx xxx


