Бизнес
Без комиссии
Расстояние до ближайшего города: до 5 км.
Этажность: 2
Общая площадь: 120 м²
Количество комнат: 4
Площадь участка: 3.50 соток
Тип дома: Дуплекс
Тип стен: Газоблок
Внешнее утепление стен: Пенопласт
Санузел: 2 и более
Комфорт: Балкон, Забор, ограждение, Терраса
Коммуникации: Асфальтированная дорога, Электричество, Вывоз отходов, Канализация септик, Скважина
Инфраструктура (до 500 метров): Детский сад, Парк, зелёная зона, Детская площадка, Отделение почты, Ресторан, кафе, Школа, Магазин, киоск, Супермаркет, ТРЦ, Остановка транспорта
Ландшафт (до 1 км.): Лес, Озеро
Описание
Пропонується стильний дуплекс 117 м2 + тераса та балкон у передмісті Києва.
Основні характеристики:
• Надійна конструкція: стрічковий монолітний фундамент, газоблок (300 мм) + утеплення (100 мм)
• Енергоефективність: вікна WDS/Veka (3-камерний профіль, 2-камерний склопакет із газом)
• Комунікації: власна свердловина (33 м), септик (6,5 м3), заведено 10 кВт електроенергії
• Асфальтований під’їзд, 2 паркомісця (монолітний бетон 15 см)
• Зручне планування:
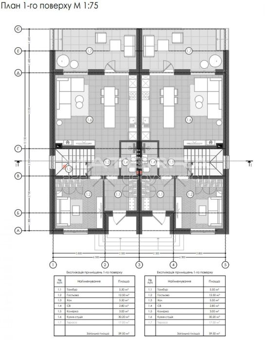
1-й поверх: кухня-студія з виходом на терасу, гостьова кімната, санвузол, гардеробна
2-й поверх: 3 спальні, санвузол, ванна, гардеробна, балкон із панорамним видом
Локація:
• 10 км до Києва (15 хв на авто), 4 км до Одеської траси
• Розвинена інфраструктура: магазин, парк, громадський транспорт – у пішій доступності
• Ліс в пішій доступності
Сучасний, енергоефективний будинок у затишній локації поблизу столиці!
Пропозиція варта уваги!
Запрошую на перегляд!
Основні характеристики:
• Надійна конструкція: стрічковий монолітний фундамент, газоблок (300 мм) + утеплення (100 мм)
• Енергоефективність: вікна WDS/Veka (3-камерний профіль, 2-камерний склопакет із газом)
• Комунікації: власна свердловина (33 м), септик (6,5 м3), заведено 10 кВт електроенергії
• Асфальтований під’їзд, 2 паркомісця (монолітний бетон 15 см)
• Зручне планування:
1-й поверх: кухня-студія з виходом на терасу, гостьова кімната, санвузол, гардеробна
2-й поверх: 3 спальні, санвузол, ванна, гардеробна, балкон із панорамним видом
Локація:
• 10 км до Києва (15 хв на авто), 4 км до Одеської траси
• Розвинена інфраструктура: магазин, парк, громадський транспорт – у пішій доступності
• Ліс в пішій доступності
Сучасний, енергоефективний будинок у затишній локації поблизу столиці!
Пропозиція варта уваги!
Запрошую на перегляд!
ID: 876017569
Связаться с продавцом
xxx xxx xxx

