Бизнес
Вид объекта: Новостройка
Без комиссии
Готов сотрудничать с риэлторами
Название ЖК: ЖК Star City
Этаж: 21
Этажность: 25
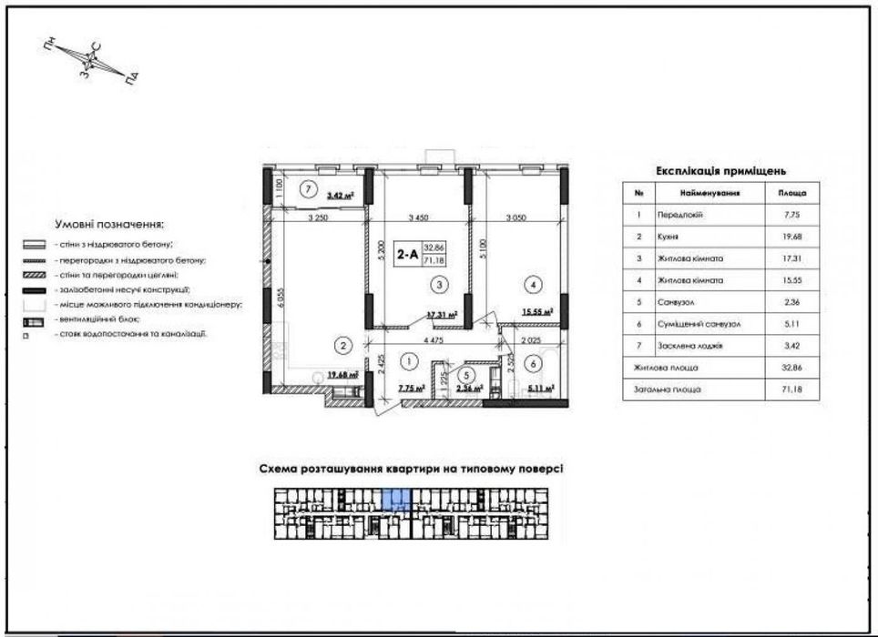
Общая площадь: 71.18 м²
Площадь кухни: 19.70 м²
Тип стен: Монолитный
Класс жилья: Комфорт
Количество комнат: 2 комнаты
Планировка: Раздельная
Отопление: Централизованное
Ремонт: После строителей
Описание
Доброго дня, Шановний майбутній Власник цієї квартири. Все, що написано нижче, стосується саме будинку №1 у ЖК "Star City" Стан готовності будинку = 99%
- Почнемо з головного - це звісно ЦІНА = 3099000грн. Це краща ціна серед ЖК класу комфорт! ОБГРУНТУВАННЯ ціни у кінці об’яви.
- Характеристики квартири: Кімнат=2 Поверх=21 / Поверхів=25 Загальна=71.2квм Житлова=33квм Кухня=19.7квм..
- Умови придбання: офіційна перепоступка від юридичної особи.
- Плановий термін введення в експлуатацію: 4 квартал 2025 року
- У будівництві ЖК Star City задіяний такий гігант будівельної галузі, як
Bud Capital. А це вже гарантія, що даний ЖК добудується.
Короткий опис ЖК "Стар Сіті"
Star City - це сучасний ЖК комфорт-класу
з власнийм закритим "простором життя" площею майже 8Га. ЖК розташований
за буд. адресою: Каунаська 27 у Дніпровському р-ні м.Києва. Поруч з ЖК
"Комфорт таун", який вже сформував, всю необхідну інфраструктуру, а
саме: садочки, ліцеї, спортивні зали, дитячі майданчики, розвиваючі
курси, супермаркет "Novus", ресторани тощо.
Пропозиція дійсна поки Підрядники бажають продати певну кількість об'єктів. Не прогавте, СКОРИСТАЙТЕСЬ цією МОЖЛИВІСТЮ та придбайте найкращу інвестицію у майбутнє/нерухомість!
Связаться с продавцом
xxx xxx xxx

