Бизнес
Без комиссии
Подходит под требования єОселя
Этажность: 2
Общая площадь: 100 м²
Количество комнат: 4
Площадь участка: 1 соток
Тип дома: Таунхаус
Отопление: Индивидуальное газовое
Ремонт: После строителей
Меблирование: Нет
Описание
Без комісії для покупця!!!
Представник власника
код ОБʼЄКТу 115
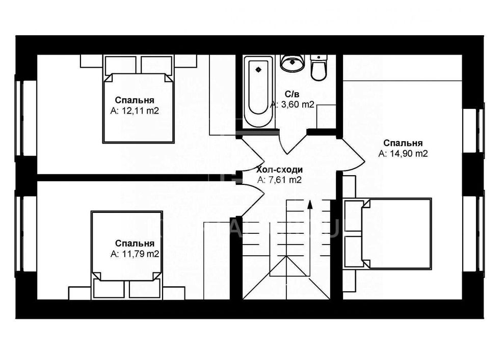
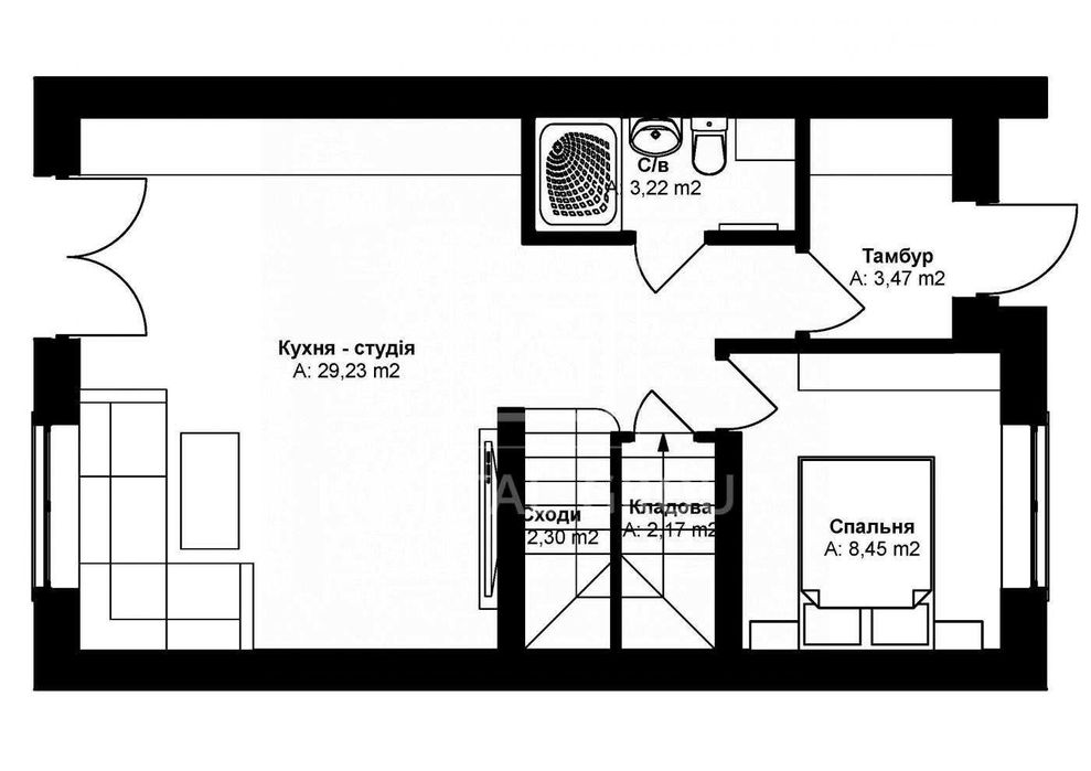
Гарний готовий з документами двоповерховий цегляний ТаунХаус без ремонту. Планування: 1-й поверх: передпокій - 3,5м2, гостьова кімната / кабінет - 8,5м2, комора - 2м2, гостьовий санвузол - 3м2, кухня-студія – 29м2; 2-й поверх: хол - 7,5м2, санвузол - 3,5м2, спальня - 15м2, дві дитячих по 12м2; 3-й поверх: мансарда, вільне приміщення - 35м2. Сходи на 3-й поверх у вартість не входять. Індивідуальне газове опалення. Технологія будівництва якісна. Власна парковка для авто. Земельна ділянка.
Комунікації центральні міські:
-газ;
-електрика 6,5 кВт;
-каналізація;
-вода скважина.
Економні комунальні платежі.
Інфраструктура: будинок розташований в тихому, спокійному місці в оточенні зелених сосен і, в той же час, в пішій доступності від центра міста. Доступний виїзд на Варшавську трасу. Поруч з будинком: Новус, школа, садок, макдональдс, магазини, кафе. Для тих, хто користується громадським транспортом поруч проходить маршрутне таксі до Києва (№422 - Академмістечко і №421 - Героїв Дніпра).
Підгірна Оксана АН Квартал (9 років на ринку нерухомості) - сертифікований рієлтор спілки фахівців нерухомості України. Отримала кваліфікаційний сертифікат, виданий рішенням сертифікаційної комісії СФНУ і внесена до реєстрів сертифікованих фахівців. Працювала із великими забудовниками в місті Ірпінь на посаді маркетолога, комерційного директора.
Дивіться всі мої оголошення. Як співробітник агенції маю доступ до всієї бази нерухомості Регіону. Ключі на руках, записуйтесь на перегляд у будь-який зручний для вас час.
СПРАВЖНЬОМУ ПОКУПЦЮ ЗНАЧНИЙ ТОРГ
Представник власника
код ОБʼЄКТу 115
Гарний готовий з документами двоповерховий цегляний ТаунХаус без ремонту. Планування: 1-й поверх: передпокій - 3,5м2, гостьова кімната / кабінет - 8,5м2, комора - 2м2, гостьовий санвузол - 3м2, кухня-студія – 29м2; 2-й поверх: хол - 7,5м2, санвузол - 3,5м2, спальня - 15м2, дві дитячих по 12м2; 3-й поверх: мансарда, вільне приміщення - 35м2. Сходи на 3-й поверх у вартість не входять. Індивідуальне газове опалення. Технологія будівництва якісна. Власна парковка для авто. Земельна ділянка.
Комунікації центральні міські:
-газ;
-електрика 6,5 кВт;
-каналізація;
-вода скважина.
Економні комунальні платежі.
Інфраструктура: будинок розташований в тихому, спокійному місці в оточенні зелених сосен і, в той же час, в пішій доступності від центра міста. Доступний виїзд на Варшавську трасу. Поруч з будинком: Новус, школа, садок, макдональдс, магазини, кафе. Для тих, хто користується громадським транспортом поруч проходить маршрутне таксі до Києва (№422 - Академмістечко і №421 - Героїв Дніпра).
Підгірна Оксана АН Квартал (9 років на ринку нерухомості) - сертифікований рієлтор спілки фахівців нерухомості України. Отримала кваліфікаційний сертифікат, виданий рішенням сертифікаційної комісії СФНУ і внесена до реєстрів сертифікованих фахівців. Працювала із великими забудовниками в місті Ірпінь на посаді маркетолога, комерційного директора.
Дивіться всі мої оголошення. Як співробітник агенції маю доступ до всієї бази нерухомості Регіону. Ключі на руках, записуйтесь на перегляд у будь-який зручний для вас час.
СПРАВЖНЬОМУ ПОКУПЦЮ ЗНАЧНИЙ ТОРГ
ID: 892635789
Связаться с продавцом
xxx xxx xxx
Опубликовано 12 ноября 2025 г.
БЕЗ КОМІСІЇ! готовий ТаунХаус з документами в ТОП локація міста. ГАЗ
68 000 $
Договорная
Местоположение
Буча
Киевская область